Terratetto unifamiliare 166 m², nuova, Luka, Parenzo

€ 550.000
5+
166 m²
3+
Terrazzo

Nota

Annuncio aggiornato il 14/03/2026
Descrizione

This description has been translated automatically and may not be accurate

riferimento: 2365-1

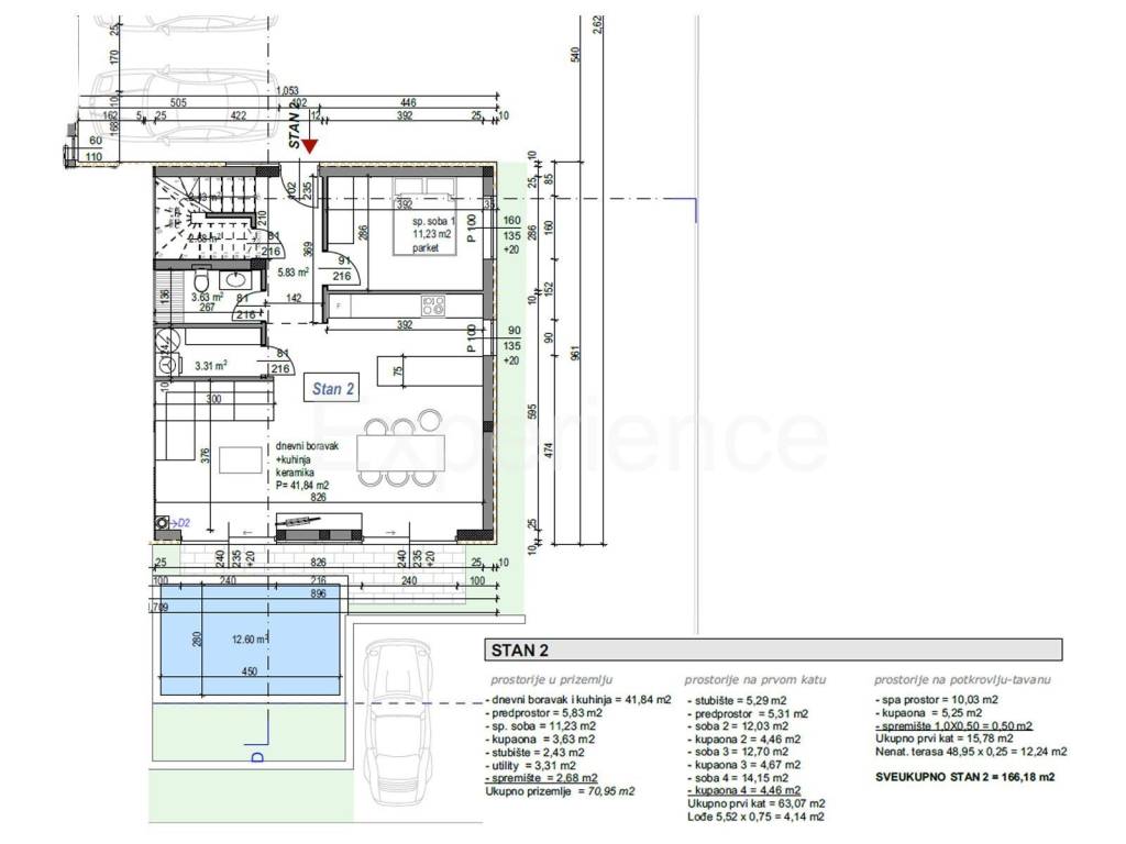
In una zona tranquilla, immersa nel verde di Parenzo, a soli 2 chilometri dal centro città e dalla spiaggia, è in vendita una moderna casa bifamiliare di nuova costruzione, con la superficie totale di 166,18 m. Si sviluppa su tre piani, e coniuga perfettamente design contemporaneo, spazi luminosi e una disposizione funzionale. Grazie alle ampie aperture vetrate e alla planimetria attentamente studiata, la casa garantisce molta luce naturale e una sensazione di comfort durante tutto lanno.

Disposizione degli ambienti:
Piano terra: Corridoio, soggiorno, cucina e sala da pranzo con accesso alla terrazza coperta e al giardino, camera da letto, bagno, lavanderia e ripostiglio.
Primo piano: Tre comode camere da letto, ciascuna con il proprio bagno due camere da letto con accesso al balcone (5,52 m),
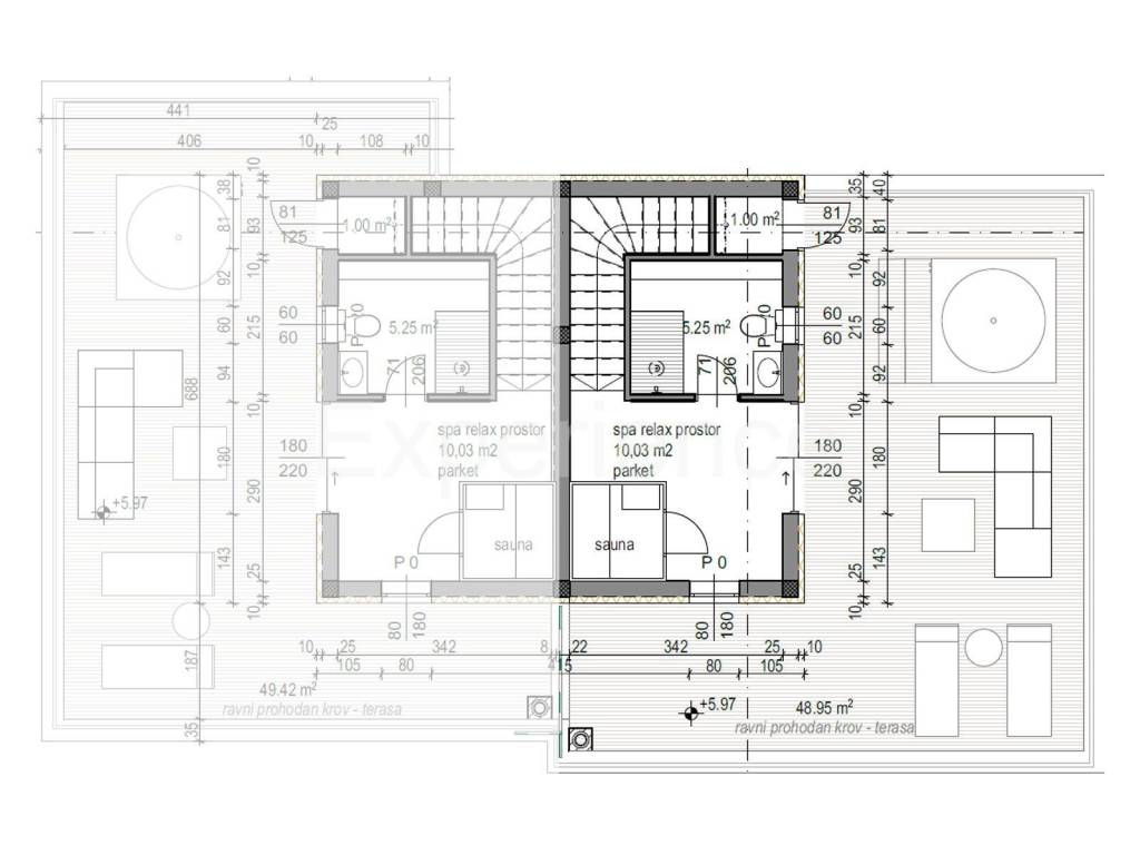
Mansarda: Zona relax SPA con sauna, bagno e spaziosa terrazza sul tetto (48,95 m) con predisposizione per jacuzzi, esposta a ovest il luogo perfetto per godersi il tramonto.

ESTERNO
Lo spazio esterno è arricchito da un giardino privato con piscina di 12,60 m il luogo ideale per rinfrescarsi destate e rilassarsi in completa privacy.

La casa sarà dotata di riscaldamento a pavimento e climatizzatori che garantiranno una temperatura confortevole durante tutto lanno.

Completamento previsto della costruzione: giugno 2026.

Situata in una tranquilla zona residenziale, questa casa offre privacy i tranquillità, pur essendo a pochi passi da tutti i principali servizi: negozi di alimentari, ristoranti, bar e molto altro. La posizione offre il perfetto equilibrio tra uno stile di vita rilassato e la vicinanza alla città e al mare.

Vantaggi aggiuntivi:
Investitore rinomato con anni di esperienza e progetti riconosciuti per la loro qualità,
L'acquirente non paga l'imposta sul trasferimento immobiliare pari al 3% dal prezzo di acquisto,
Il prezzo è comprensivo di IVA (25%).
Se vuoi saperne di più, puoi parlare con Patricija Simonetti.
Caratteristiche
Tipologia
Terratetto unifamiliare
Contratto
Vendita
Piano
1
Superficie
166 m² | commerciale 312 m²
Locali
5+
Camere da letto
4
Bagni
3+
Terrazzo
Riscaldamento
Centralizzato
Dettaglio superficie

Abitazione

Piano
1
Superficie
166,0 m²
Coefficiente
100%
Tipo superficie
Principale
Sup. commerciale
166,0 m²

Terreno

Piano
Piano terra
Superficie
146,0 m²
Coefficiente
100%
Tipo superficie
Accessoria
Sup. commerciale
146,0 m²
Informazioni sul prezzo
Prezzo
€ 550.000
Prezzo al m²
1.763 €/m²
Efficienza energetica
  • Anno di costruzione

    2026
  • Stato

    Nuovo / In costruzione
  • Riscaldamento

    Centralizzato
  • Certificazione energetica

    Non classificabile
Scopri ogni angolo dell'immobile
+9
Opzioni aggiuntive

Contatta l'inserzionista

Oppure