Appartamento nuovo, secondo piano, Luka, Parenzo

€ 599.000
5+
151 m²
3
2
Terrazzo

Nota

Annuncio aggiornato il 13/03/2026
Descrizione

This description has been translated automatically and may not be accurate

riferimento: 2247-1

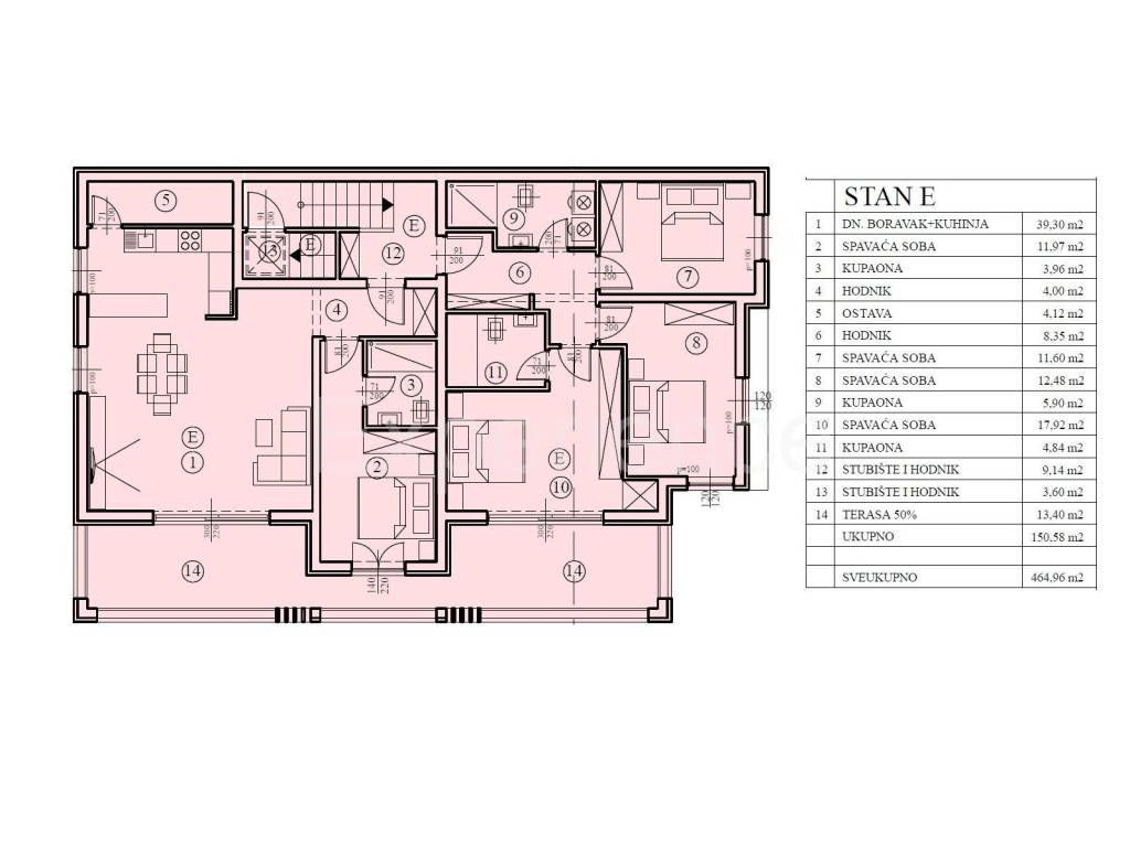
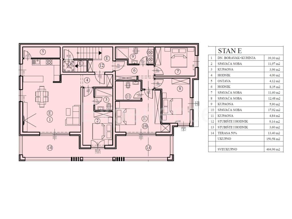
In una POSIZIONE ATTRAENTE, a soli 600 m dalla spiaggia e 1.000 m dal centro della città, è in vendita un attico in costruzione, superficie totale 150,58 m. Situato al secondo e ultimo piano di un intimo edificio residenziale con solo cinque unità abitative, l'attico offre intimità e comfort di vita con un design moderno e una disposizione funzionale.

L'appartamento è composto da:
corridoio,
soggiorno luminoso e aperto collegato alla cucina e alla sala da pranzo,
ampie vetrate che conducono alla spaziosa terrazza coperta (26,80 m),
quattro comode camere da letto,
tre bagni moderni e ripostiglio.

L'appartamento comprende due posti auto di fronte all'edificio.

Vantaggi aggiuntivi includono riscaldamento a pavimento in tutte le stanze e condizionatori d'aria inverter che forniscono una temperatura confortevole durante tutto l'anno.

Nota: l'acquirente non paga l'imposta sulla compravendita dell'immobile (3% del prezzo di acquisto).

Questa offerta è una rara opportunità, un appartamento moderno in un'ottima posizione a Parenzo - una perfetta combinazione di lusso, funzionalità e vicinanza al mare!
Se vuoi saperne di più, puoi parlare con Patricija Simonetti.
Caratteristiche
Tipologia
Appartamento
Contratto
Vendita
Piano
2 piano
Superficie
151 m²
Locali
5+
Camere da letto
4
Bagni
3
Terrazzo
Riscaldamento
Centralizzato
Informazioni sul prezzo
Prezzo
€ 599.000
Prezzo al m²
3.967 €/m²
Efficienza energetica
  • Anno di costruzione

    2025
  • Stato

    Nuovo / In costruzione
  • Riscaldamento

    Centralizzato
  • Certificazione energetica

    Non classificabile
Scopri ogni angolo dell'immobile
+4
Opzioni aggiuntive

Contatta l'inserzionista

Oppure