Appartamento nuovo, piano terra, Luka, Parenzo

€ 369.000
5+
95 m²
1
T
Terrazzo

Nota

Annuncio aggiornato il 19/03/2026
Descrizione

This description has been translated automatically and may not be accurate

riferimento: 2252-1

Questo bellissimo appartamento si trova a solo 1 km dalle bellissime spiagge e 3 km dal centro di Parenzo, il che lo rende un luogo ideale per vivere o trascorrere le vacanze.

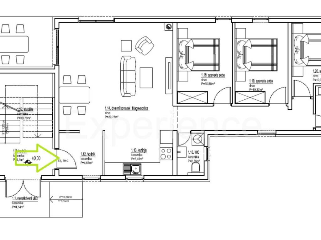
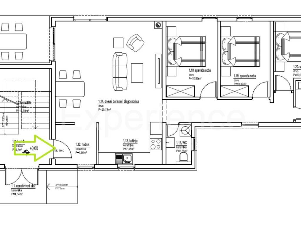
L'appartamento è situato al piano terra dell'edificio residenziale e copre una superficie netta di 94.87 m (lordi 99.78 m). Comprende: corridoio, spazioso soggiorno collegato alla cucina e alla sala da pranzo con accesso alla spaziosa terrazza coperta (9,82 m), tre camere da letto, bagno e toilette.

L'appartamento è dotato di riscaldamento elettrico a pavimento, canna fumaria e climatizzatori, che garantisce un comfort ottimale durante tutto l'anno.

Inoltre dispone di un giardino privato, con la superficie di 115 m, perfetto per rilassarsi e godersi la vita all'aria aperta.

Altre caratteristiche:
- posto auto, tapparelle elettriche, tripli infissi in PVC e zanzariere, prima fase per celle fotovoltaiche, isolamento pareti esterne di 10 cm.

Nota: l'acquirente non paga l'imposta sulla compravendita dell'immobile (3% del prezzo di acquisto).

Se vuoi saperne di più, puoi parlare con Patricija Simonetti.
Caratteristiche
Tipologia
Appartamento
Contratto
Vendita
Piano
Piano terra
Superficie
95 m²
Locali
5+
Camere da letto
3
Bagni
1
Terrazzo
Riscaldamento
Centralizzato
Informazioni sul prezzo
Prezzo
€ 369.000
Prezzo al m²
3.884 €/m²
Efficienza energetica
  • Anno di costruzione

    2025
  • Stato

    Nuovo / In costruzione
  • Riscaldamento

    Centralizzato
  • Certificazione energetica

    Non classificabile
Scopri ogni angolo dell'immobile
+13
Opzioni aggiuntive

Contatta l'inserzionista

Oppure