Villa unifamiliare 291 m², nuova, Luka, Parenzo

€ 1.300.000
5+
291 m²
3+
Terrazzo

Nota

Annuncio aggiornato il 14/03/2026
Descrizione

This description has been translated automatically and may not be accurate

riferimento: 2181-1

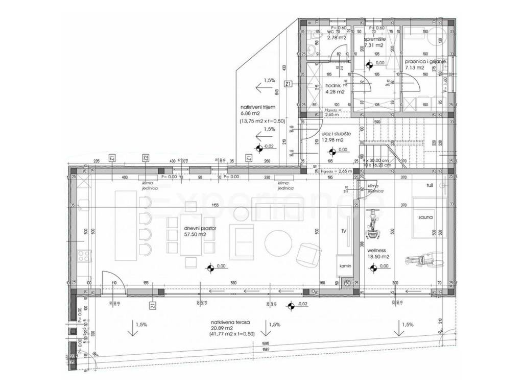
Nelle vicinanze di Parenzo - ca. 2,5 km dal mare, in un ambiente molto tranquillo è in vendita una villa di lusso in costruzione, con la superficie netta complessiva di 290,82 m. La villa è caratterizzata da un attraente design moderno con ampie aperture vetrate affacciate sul mare.

La villa si sviluppa su due piani. Al piano terra si trova: il corridoio, un luminoso spazio aperto che unisce soggiorno, cucina e sala da pranzo con acesso ad un spazioso terrazzo coperto di 41,77 m. Al piano terra si trova anche una sala benessere con sauna e doccia, locale tecnico, lavanderia e toilette. Al primo piano della villa sono situate quattro confortevoli camere da letto, ciascuna con il proprio bagno e accesso ad un spazioso terrazzo coperto (36,43 m). Un posto speciale è occupato dalla terrazza sul tetto (57,87 m), che offre una bellissima VISTA APERTA SUL MARE e sul centro storico della citta di Parenzo, ed è il luogo ideale per prendere il sole e rilassarsi.
La disposizione degli stanze e le dotazioni della villa corrispondono alle moderne esigenze abitative. L'attrezzatura è di alta qualità e le stanze sono molto luminose.

Caratteristiche aggiuntive:
- 10 cm di isolamento termico,
- riscaldamento a pavimento tramite pompa di calore,
- condizionatori in ogni stanza,
- sala fitness con sauna,
- i serramenti esterni sono in alluminio, colore antracite, vetro a tre strati,
- allarme e videosorveglianza.

La villa ha un giardino di 576 m. Nel giardino paesaggistico verrà costruita la piscina (32 m).

Il completamento previsto della costruzione è entro il 31. dicembre 2025.

L'IVA è inclusa nel prezzo indicato. Non è prevista alcuna imposta sulle transazioni immobiliari pari al 3% del prezzo di acquisto concordato.

La posizione della villa è tranquilla, a pochi passi si trova un negozio di alimentari, ristorante e bar.
Se vuoi saperne di più, puoi parlare con Patricija Simonetti.
Caratteristiche
Tipologia
Villa unifamiliare
Contratto
Vendita
Piano
1
Superficie
291 m² | commerciale 967 m²
Locali
5+
Camere da letto
4
Bagni
3+
Terrazzo
Climatizzazione
Centralizzato, freddo/caldo
Altre caratteristiche
  • Caminetto
  • Impianto di allarme
  • Porta blindata
  • Piscina
Dettaglio superficie

Abitazione

Piano
1
Superficie
291,0 m²
Coefficiente
100%
Tipo superficie
Principale
Sup. commerciale
291,0 m²

Terreno

Piano
Piano terra
Superficie
676,0 m²
Coefficiente
100%
Tipo superficie
Accessoria
Sup. commerciale
676,0 m²
Informazioni sul prezzo
Prezzo
€ 1.300.000
Prezzo al m²
1.344 €/m²
Efficienza energetica
  • Anno di costruzione

    2024
  • Stato

    Nuovo / In costruzione
  • Climatizzatore

    Centralizzato, freddo/caldo
  • Certificazione energetica

    Non classificabile
Scopri ogni angolo dell'immobile
+5
Opzioni aggiuntive

Contatta l'inserzionista

Oppure