map icon

Appartamento nuovo, secondo piano, Torre-Abrega

Torre-Abrega
€ 286.827
5
69 m²
1
2

Nota

Annuncio aggiornato il 13/03/2026
Descrizione

This description has been translated automatically and may not be accurate

riferimento: 1955-1

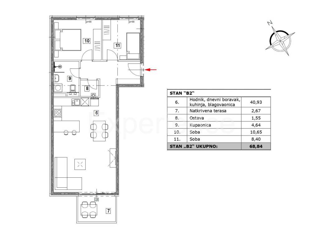
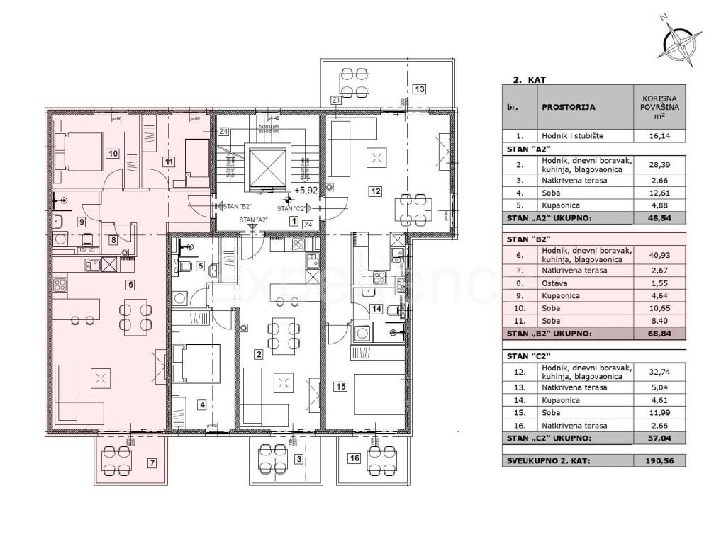
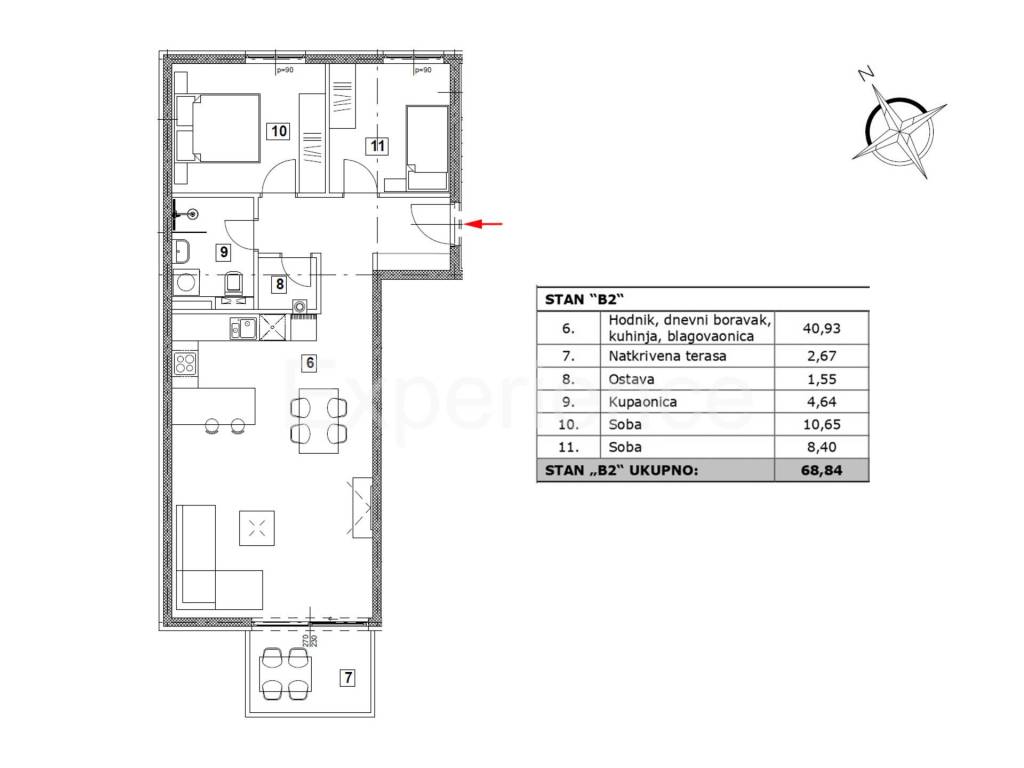
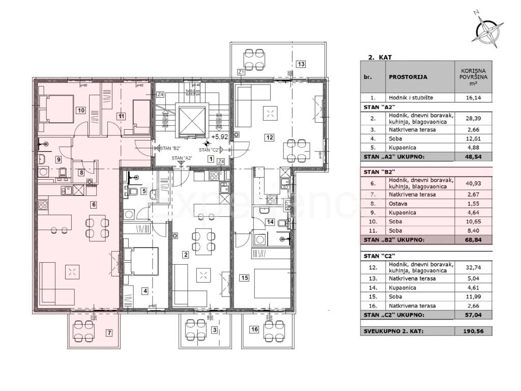
A Vabriga - a circa 900 m dal mare, in una posizione molto tranquilla è in vendita un appartamento in un nuovo edificio con la superficie di 68,84 m. L'appartamento è situato al secondo piano di un edificio residenziale. Comprende: corridoio, spazio aperto e luminoso che unisce soggiorno, cucina e zona pranzo con accesso alla terrazza coperta (5,33 m), due camere da letto, bagno e ripostiglio. Ledificio è dotato di ascensore.

È stato installato il riscaldamento a pavimento nel soggiorno, nel corridoio e nel bagno, e in ogni stanza sono installati climatizzatori inverter.

Lappartamento include anche un deposito (2,70 m) al piano terra dell'edificio e un posto auto di fronte all'edificio.

Un vantaggio particolare di questo appartamento è la sua POSIZIONE: a pochi passi si trovano ristoranti, negozio di alimentari, supermercato e bar.

Nota: non è dovuta alcuna imposta sul trasferimento immobiliare pari al 3% del prezzo di acquisto. Il prezzo indicato è comprensivo di IVA (25%).
Se vuoi saperne di più, puoi parlare con Patricija Simonetti.
Caratteristiche
Tipologia
Appartamento
Contratto
Vendita
Piano
2 piano
Ascensore
Superficie
69 m²
Locali
5
Camere da letto
2
Bagni
1
Riscaldamento
Centralizzato
Informazioni sul prezzo
Prezzo
€ 286.827
Prezzo al m²
4.157 €/m²
Efficienza energetica
  • Anno di costruzione

    2024
  • Stato

    Nuovo / In costruzione
  • Riscaldamento

    Centralizzato
  • Certificazione energetica

    Non classificabile
Scopri ogni angolo dell'immobile
+14
Opzioni aggiuntive

Contatta l'inserzionista

Oppure