map icon

Villa unifamiliare 233 m², nuova, Luka, Parenzo

ParenzoLuka
€ 820.000
5+
233 m²
3+
Terrazzo

Nota

Annuncio aggiornato il 14/03/2026
Descrizione

This description has been translated automatically and may not be accurate

riferimento: 1920-1

Nelle vicinanze di Parenzo - ca. 4 km dal mare e dal centro della città, in un ambiente molto tranquillo, è in vendita una villa di lusso in costruzione, con la superficie complessiva di 233,13 m. La villa è caratterizzata da un design moderno e attraente con ampie superfici vetrate con vista sul paesaggio circostante.

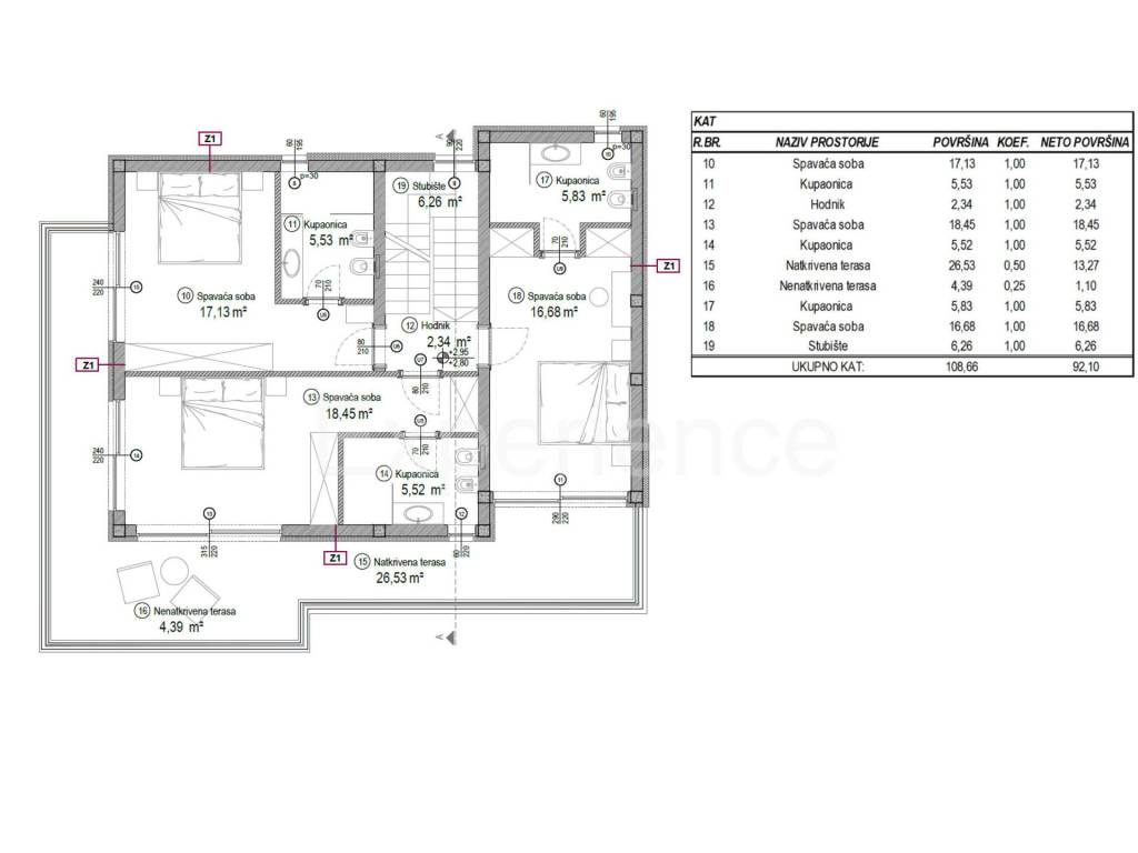
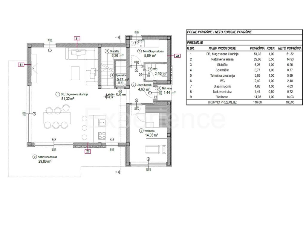
La villa si sviluppa su tre piani: piano terra, primo piano e mansarda. Al piano terra della villa sono situati: un spazio aperto e luminoso nel quale si trovano il soggiorno, la cucina e la sala da pranzo con accesso ad un spazioso terrazzo coperto (29,86 m), wellness con sauna, locale tecnico, deposito e toilette. Al primo piano della villa sono situate tre camere da letto, ognuna con il proprio bagno e con accesso ad un spazioso terrazzo. Mentre nella mansarda della villa si trovano la sauna, bagno, due depositi e un spazioso terrazzo (77,80 m). Dalla terrazza si estende una bellissima vista sul mare.

La villa ha il giardino di 543 m. Nel giardino paesaggistico sarà costruita la piscina (27 m).

È previsto il riscaldamento a pavimento tramite pompa di calore e condizionatori d'aria per il raffreddamento.

Il completamento previsto della costruzione è entro il 31. dicembre 2024.

Notando, l'acquirente nell'acquisto della proprietà non paga l'imposta sulle vendite immobiliari.
Se vuoi saperne di più, puoi parlare con Patricija Simonetti.
Caratteristiche
Tipologia
Villa unifamiliare
Contratto
Vendita
Piano
1
Superficie
233 m² | commerciale 776 m²
Locali
5+
Camere da letto
3
Bagni
3+
Terrazzo
Dettaglio superficie

Abitazione

Piano
1
Superficie
233,0 m²
Coefficiente
100%
Tipo superficie
Principale
Sup. commerciale
233,0 m²

Terreno

Piano
Piano terra
Superficie
543,0 m²
Coefficiente
100%
Tipo superficie
Accessoria
Sup. commerciale
543,0 m²
Informazioni sul prezzo
Prezzo
€ 820.000
Prezzo al m²
1.057 €/m²
Efficienza energetica
  • Anno di costruzione

    2024
  • Stato

    Nuovo / In costruzione
  • Certificazione energetica

    Non classificabile
Scopri ogni angolo dell'immobile
+8
Opzioni aggiuntive

Contatta l'inserzionista

Oppure