map icon

Quadrilocale primo piano, Okrug

Okrug
€ 260.785
4
92 m²
1
1

Nota

Annuncio aggiornato il 05/12/2025
Descrizione

This description has been translated automatically and may not be accurate

riferimento: 1382-1

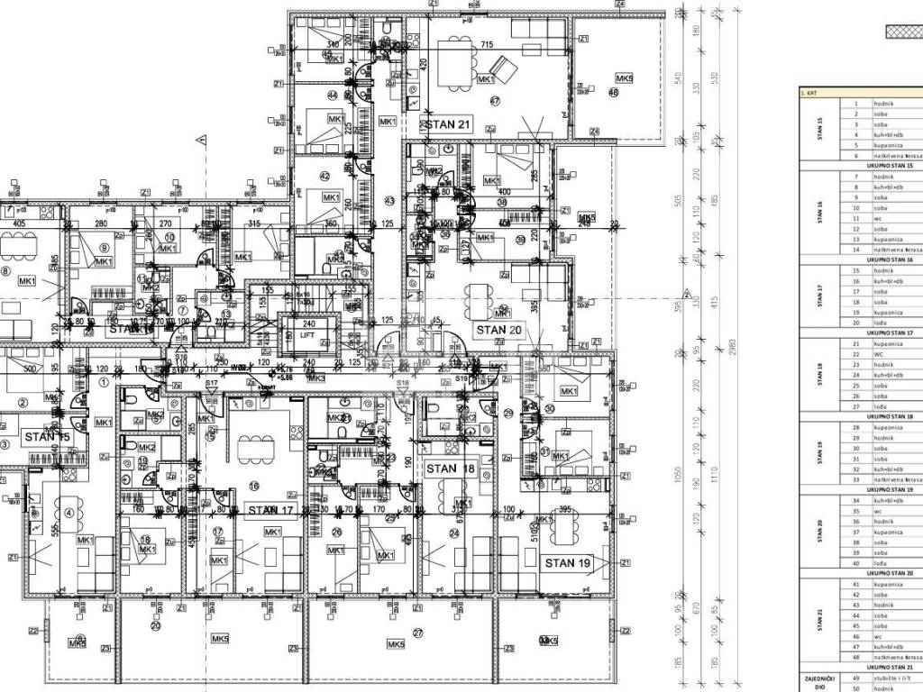
We are offering for sale a two-bedroom apartment under construction in Okrug Gornji. The apartment code is "STAN 20".
The apartment consists of a hallway, two bedrooms, a living room with kitchen and dining room, bathroom, additional toilet, and a loggia. You can see the detailed square footage in the floor plan.
The building is under construction, and completion is scheduled for summer 2026.
Price of an outdoor parking space: 5000 EUR.
The construction is taking place in a quiet and safe location ideal for permanent residence, year-round or tourist rental.
For more information, contact the agent.
Caratteristiche
Tipologia
Appartamento
Contratto
Vendita
Piano
1 piano
Superficie
92 m²
Locali
4
Camere da letto
2
Bagni
1
Informazioni sul prezzo
Prezzo
€ 260.785
Prezzo al m²
2.835 €/m²
Efficienza energetica
  • Certificazione energetica

    Non classificabile
Scopri ogni angolo dell'immobile
+4
Opzioni aggiuntive

Contatta l'inserzionista

Oppure