map icon

Appartamento secondo piano, Okrug

Okrug
€ 680.000
5+
85 m²
3
2

Nota

Annuncio aggiornato il 05/12/2025
Descrizione

This description has been translated automatically and may not be accurate

riferimento: 1357-1

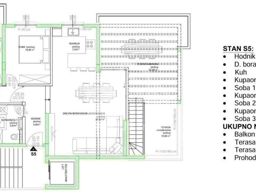
We are offering for sale a three-bedroom penthouse apartment on the second floor of a residential building under construction in Okrug Gornji. The apartment consists of a hallway, living room with kitchen and dining room, three bedrooms, three bathrooms, and a balcony, covered and uncovered terraces. The interior area of the apartment is 85.25 m2, balcony 11.25 m2, covered terrace 25 m2, uncovered terrace 10.60 m2, and roof terrace 104.55 m2. It comes with two garage and two outdoor parking spaces. The property is being built in a quiet location in the second row from the sea, and as such represents exceptional potential for tourist or year-round rental. For more information, contact the agent.
Caratteristiche
Tipologia
Appartamento
Contratto
Vendita
Piano
2 piano
Superficie
85 m²
Locali
5+
Camere da letto
3
Bagni
3
Informazioni sul prezzo
Prezzo
€ 680.000
Prezzo al m²
8.000 €/m²
Efficienza energetica
  • Certificazione energetica

    Non classificabile
Scopri ogni angolo dell'immobile
+5
Opzioni aggiuntive

Contatta l'inserzionista

Oppure