map icon

Bilocale nuovo, Rogosnizza

Rogosnizza
€ 290.000
2
67 m²
1
Terrazzo

Nota

Annuncio aggiornato il 11/03/2026
Descrizione

This description has been translated automatically and may not be accurate

riferimento: 3127-1

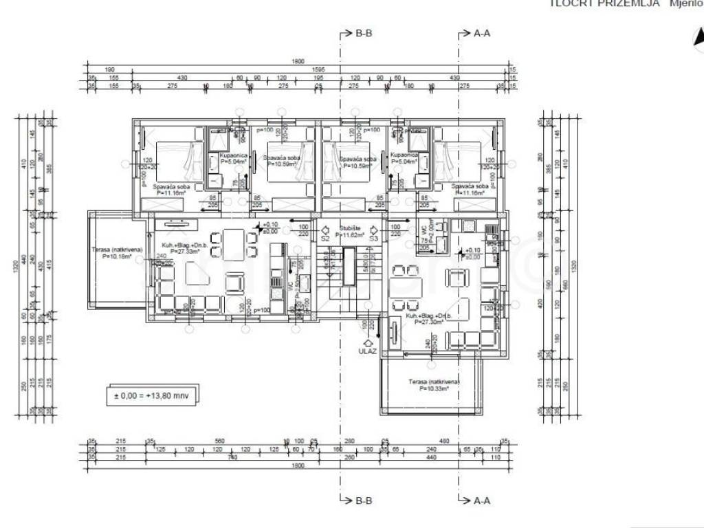
For sale are apartments placed in a small building in a prime location in Rogoznica. The building is located in a quiet street just 70m from the sea and the center, and due to the elevated location, the apartments offer a beautiful view of the sea and the entire Rogoznica. Apartments S2 and S3 are placed on the elevated ground floor and each has a total area of about 67 m, of which about 57m2 is interior space. They have a similar layout and consist of two bedrooms, a bathroom and a guest toilet, a spacious living room with a kitchen and dining room, and a large terrace, ideal for enjoying the view and relaxing. The apartments also have a storage room in the basement and a parking space. The apartments will be equipped with extremely high-quality carpentry, sanitary ware and ceramics and are sold on a turnkey basis. Construction is scheduled for completion in the summer/autumn of 2025.

Viewing this property is possible only with the signing of our standard agency agreement, which is the basis for further actions related to the sale of real estate, all in accordance with the Law on Data Protection and the Real Estate Brokerage Act.
Se vuoi saperne di più, puoi parlare con Marija Paić.
Caratteristiche
Tipologia
Appartamento
Contratto
Vendita
Superficie
67 m²
Locali
2
Bagni
1
Terrazzo
Informazioni sul prezzo
Prezzo
€ 290.000
Prezzo al m²
4.328 €/m²
Efficienza energetica
  • Stato

    Nuovo / In costruzione
  • Certificazione energetica

    Non classificabile
Scopri ogni angolo dell'immobile
+6
Opzioni aggiuntive

Contatta l'inserzionista

Oppure