map icon

Bilocale nuovo, primo piano, Rogosnizza

Rogosnizza
€ 250.000
2
63 m²
1
1

Nota

Annuncio aggiornato il 11/03/2026
Descrizione

This description has been translated automatically and may not be accurate

riferimento: 3138-1

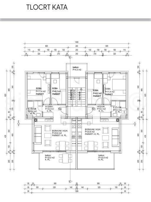
For sale are apartments in a new building in Rogoznica itself. The apartments are placed on the first floor of a smaller building and have a beautiful view of the sea and the entire surroundings. All apartments have a similar layout and a floor area of 62.80 m2. They consist of a hallway, bathroom, two bedrooms, an open-concept kitchen with a dining room and a living room from which you can exit to a balcony with a beautiful view of the sea and the entire Rogoznica. The apartments will be air-conditioned and have a fully equipped bathroom. The exterior joinery will have high-quality aluminum shutters, parquet flooring will be installed in the bedrooms, and the apartments will also have a chimney so that in addition to air conditioning, heating with pellets is also possible in winter. The apartments will be air-conditioned with a fitted bathroom and each will have an outdoor parking space included in the price. The building is located 270m from the beach, the same distance from cafes and restaurants, so it is an excellent location for apartments for rent, but also as your own holiday property.

Viewing this property is possible only with the signing of our standard agency agreement, which is the basis for further actions related to the sale of real estate, all in accordance with the Law on Data Protection and the Real Estate Brokerage Act.
Se vuoi saperne di più, puoi parlare con Marija Paić.
Caratteristiche
Tipologia
Appartamento
Contratto
Vendita
Piano
1 piano
Superficie
63 m²
Locali
2
Bagni
1
Informazioni sul prezzo
Prezzo
€ 250.000
Prezzo al m²
3.968 €/m²
Efficienza energetica
  • Stato

    Nuovo / In costruzione
  • Certificazione energetica

    Non classificabile
Scopri ogni angolo dell'immobile
+5
Opzioni aggiuntive

Contatta l'inserzionista

Oppure