map icon

Bilocale nuovo, secondo piano, Grad - Meje, Spalato

SpalatoGrad - Meje
€ 289.000
2
67 m²
1
2

Nota

Annuncio aggiornato il 28/01/2026
Descrizione

This description has been translated automatically and may not be accurate

riferimento: 3018-1

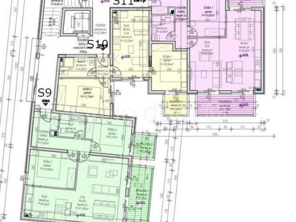
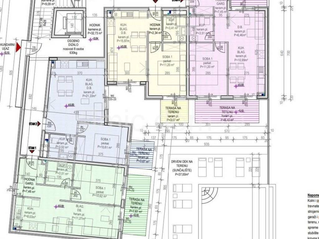
For sale is a modern apartment placed on the second floor of a building with an elevator and it also has an outdoor pool. The apartment consists of a hallway, a bathroom, two bedrooms, a kitchen with a dining room, a living room and a balcony with a beautiful view of the sea. It has one parking space in the garage and a storage room in the basement, as well as the right to use the common roof terrace / walk-through roof. The area of the closed residential part is 43 m2, the balcony is 3 m2, the parking space in the garage is 13.50 m2, and the storage room is 14.86 m2. The building is located in a prime location, not even 50m from the sea and a beautiful pebble beach and close to all necessary facilities, shops, cafes, restaurants. Ownership in order. Slatine is a very quiet place on Ciovo, great for families and children. They have beautiful pebble beaches, all facilities and a direct ferry line with Split.

Viewing this property is possible only with the signing of our standard agency agreement, which is the basis for further actions related to the sale of real estate, all in accordance with the Law on Data Protection and the Real Estate Brokerage Act.
Caratteristiche
Tipologia
Appartamento
Contratto
Vendita
Piano
2 piano
Ascensore
Superficie
67 m²
Locali
2
Bagni
1
Altre caratteristiche
  • Piscina
Informazioni sul prezzo
Prezzo
€ 289.000
Prezzo al m²
4.313 €/m²
Efficienza energetica
  • Stato

    Nuovo / In costruzione
  • Certificazione energetica

    Non classificabile
Scopri ogni angolo dell'immobile
+7
Opzioni aggiuntive

Contatta l'inserzionista

Oppure