Negozio - Locale commerciale in Vendita

€ 1.390.000
3
300 m²

Nota

Annuncio aggiornato il 12/04/2026
Descrizione

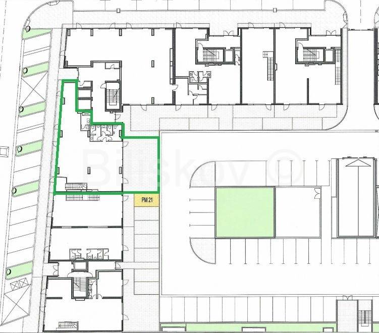
riferimento: 13632-1

www.biliskov.com ID: 13632
Donji grad, Tuškanova
Poslovni prostor površine 300m2 u prizemlju poslovne zgrade izgrađene 2011. godine.
Zgradu je gradila tvrtka VMD, odlično je održavana te vrlo kvalitetna.
Prostor se sastoji od glavnog dijela koji je interno pregrađen samo prozirnim staklima, dodatnog prostora u prizemlju, prostora u podrumu zgrade stubištem povezanog s prizemljem, 5 WC-a i dvije terase.
Pripada mu i jedno parkirno mjesto u dvorištu zgrade na parkiralištu koje je pod rampom te jedna garaža u podrumu zgrade.
Postoje dva ulaza u prostor, s ulične i dvorišne strane te jedan dodatan kroz stubište zgrade. Kroz garažu se također može ući u prostor.
Zgrada ima stalnog portira/zaštitara, stolarija je aluminijska, cijeli prostor je omeđen staklenim stijenama, opremljen protupožarnim alarmom, klima uređajima provedenima kroz stropove, ventilacijskim sustavom, video nadzorom, ADSL priključkom.
Do sada je prostor bio u namjeni ugostiteljskog objekta, te se može kupiti u potpunosti opremljen ili bez namještaja po dogovoru s prodavateljima, iako je lokacijski i tlocrtno idealan i za poliklinike, urede i slično.
Cijena: 1.390.000,00 EUR
Agencijska naknada iznosi 2% + PDV.
Se vuoi saperne di più, puoi parlare con Vedran Petrović.
Caratteristiche
Contratto
Vendita
Superficie
300 m²
Locali
3 locali
Altre caratteristiche
  • Arredato
  • Cablato
  • Impianto di allarme
Informazioni sul prezzo
Prezzo
€ 1.390.000
Prezzo al m²
4.633 €/m²
Efficienza energetica
  • Anno di costruzione

    2011
  • Stato

    Ottimo / Ristrutturato
  • Climatizzatore

    Centralizzato, freddo/caldo
  • Certificazione energetica

    Non classificabile
Scopri ogni angolo dell'immobile
+13
Opzioni aggiuntive

Contatta l'inserzionista

Oppure