Monolocale Povljana, Povliana

€ 175.000
1
53 m²
2

Nota

Annuncio aggiornato il 03/03/2026
Descrizione

riferimento: EUROVILLA-167862

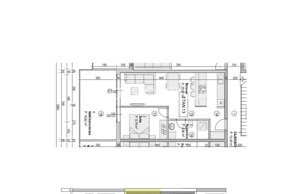
Predstavljamo vam projekt moderne novogradnje u novoizgrađenom dijelu Povljane na otoku Pagu. Zgrada se sastoji od ukupno 15 stambenih jedinica raspoređenih na 3 etaže. Udaljena je svega 350 metara od mora, lokalnih plaža i ostalih sadržaja potrebnih za kvalitetan i ispunjen život ili odmor.STAN S13 / 2. kat / 52,62 m²Stan S13 se nalazi na 2. katu zgrade te ima neto korisnu površinu od 52,62m². Sastoji se od otvorenog prostora dnevnog boravka, kuhinje i blagovaonice (29,57 m²), spavaće sobe (9,78 m²), potpuno opremljene kupaonice (4,96 m²) te natkrivene terase (16,62m2) s koje se pruža lijep pogled. Uz to, stanu pripada i jedno vanjsko parkirno mjesto.Planirano useljenje je 04/2027, zgrada je trenutno u početnim fazama radova.Zgrada će biti opremljena kvalitetnim materijalima, od čega valja izdvojiti:Multi-split klima uređaji u sobama i dnevnim boravcimaKvalitetna vanjska PVC Low-E stolarijaProtuprovalna i protupožarna vrataStaklene ograde na terasamaI još mnogo togaPovljana je šarmantno dalmatinsko mjesto na otoku Pagu, poznato po dugim pješčanim plažama i kristalno čistom moru. Idealan je izbor za nekretnine za odmor ili turistički najam — autentičan dalmatinski ugođaj, prostrane terase i blizina lokalnih restorana. Dobra prometna povezanost cestom te blizina važnijih otočnih i kopnenih odredišta čine Povljanu privlačnom investicijskom lokacijom na Pagu.Obratite nam se s povjerenjem za više informacija i dogovor razgledavanja.... Više na eurovilla.hr, ID: 167862
Se vuoi saperne di più, puoi parlare con Filip Luštica .
Caratteristiche
Tipologia
Appartamento
Contratto
Vendita
Piano
2
Superficie
53 m²
Locali
1
Camere da letto
1
Dettaglio superficie

Abitazione

Piano
2
Superficie
53,0 m²
Coefficiente
100%
Tipo superficie
Principale
Sup. commerciale
53,0 m²
Informazioni sul prezzo
Prezzo
€ 175.000
Prezzo al m²
3.302 €/m²
Efficienza energetica
  • Stato

    Nuovo / In costruzione
  • Certificazione energetica

    Esente
Planimetria
Scopri ogni angolo dell'immobile
+3
Inserzionista
scheda agenzia
Opzioni aggiuntive

Contatta l'inserzionista

Oppure