map icon

Bilocale nuovo, secondo piano, Traù

Traù
€ 195.000
2
58 m²
1
2

Nota

Annuncio aggiornato il 23/12/2025
Descrizione

This description has been translated automatically and may not be accurate

riferimento: 4669-1

Two-bedroom apartment in a new building in a quiet location, only 900 m from the center of UNESCO-listed Trogir. Modern building, quality construction and a covered terrace make this apartment ideal for family life, tourist rental or as an excellent investment. The price includes one parking space, and payment is possible in stages.
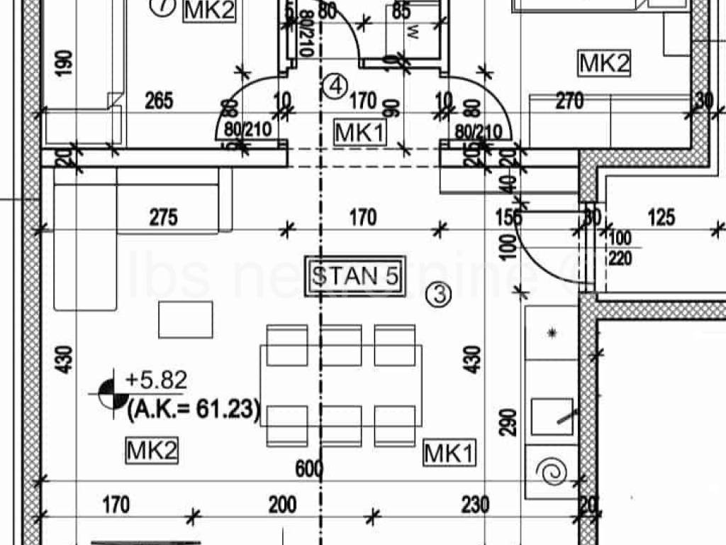
The apartment (S5) consists of:
Kitchen, dining room and living room 25.80 m
Hallway 1.87 m
Bedroom 1 10.34 m
Bedroom 2 10.15 m
Bathroom 4.84 m
Covered terrace 10.80 m
Total area: 63.80 m
Additional information:
Second floor
Quiet location near the center
Modern building with high construction standards
Quality workmanship and carefully selected materials
One parking space included in the price
Possibility of paying in phases according to the dynamics of construction
Proximity to schools, kindergartens, shops and beaches
Planned move-in: end of 2026
Located near the UNESCO city of Trogir, known for its rich history, cultural landmarks and charming Mediterranean architecture
Caratteristiche
Tipologia
Appartamento
Contratto
Vendita
Piano
2 piano
Superficie
58 m²
Locali
2
Bagni
1
Informazioni sul prezzo
Prezzo
€ 195.000
Prezzo al m²
3.362 €/m²
Efficienza energetica
  • Stato

    Nuovo / In costruzione
  • Certificazione energetica

    Non classificabile
Scopri ogni angolo dell'immobile
+5
Opzioni aggiuntive

Contatta l'inserzionista

Oppure