Quadrilocale nuovo, piano terra, Povliana

€ 375.970
4
107 m²
2
T
Balcone

Nota

Annuncio aggiornato il 03/05/2026
Descrizione

This description has been translated automatically and may not be accurate

riferimento: 300411003-2020

NEW ON OFFER!!
NEW CONSTRUCTION

Residential building with a total of four apartments. It is located on the island of Pag in the town of Povljana. The building has one two-story apartment consisting of an entrance and a living room on the ground floor. The bedrooms are located on the first/second floor. On the ground floor and on the first floor there are two more identical apartments, with two bedrooms and a living room. The 2nd floor contains a penthouse with three bedrooms and a living room. The living room and bedrooms have separate terraces. Both with a beautiful view of the sea.

- Planned completion of construction - winter 2025.
- Valid construction permit obtained
-Presale prices are currently listed, and we are at your disposal for other inquiries
- Penthouse: Three bedrooms and sea view
- Duplex apartment: Three bedrooms and a garden
- Apartment on the ground floor: Two bedrooms and a garden
- Apartment on the 1st floor: Two bedrooms

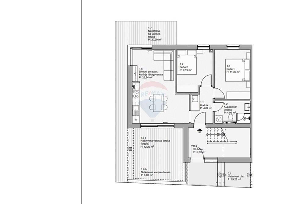
TWO-STORY APARTMENT S2 - 375,970 euros;
The apartment has THREE bedrooms, a living room, a bathroom on the first floor (underfloor heating in the bathrooms), while on the ground floor there is a guest toilet and a laundry room. The living room leads to the garden. The apartment has 75.85 m of indoor space, 45.76 m of terraces (covered and uncovered) and about 88 m of garden, and 2 parking spaces. The total square footage with coefficients is 107.42 m

LOCATION:
The future building is located in Povljana on the island of Pag, 650m from the sea, 950m from the local beach. The building is on an elevated site, which gives it a beautiful view of the sea. On the other side, there is also a beautiful view of the Velebit mountain.
The city of Pag is only a 10-minute drive away, and the airport and the city of Zadar are only one hour away by car.The island of Pag is known for its top quality cheeses and a wide gastronomic offer. On the other side of the island is the Zrće beach in Novalja, which is a famous party destination. With this, we can say that the island of Pag is a destination that has well-balanced locations for family vacations, as well as for entertainment.

ID CODE: 300411003-2020

RE/MAX Complete
Voditelj ureda
Mob: +385 914444271
Tel: +385 53 560 173
E-mail: complete@remax.hr
https://www.remax.hr/Complete
Se vuoi saperne di più, puoi parlare con RE/MAX Complete.
Caratteristiche
Tipologia
Appartamento
Contratto
Vendita
Piano
Piano terra
Ascensore
Superficie
107 m²
Locali
4
Camere da letto
3
Bagni
2
Balcone
Terrazzo
No
Informazioni sul prezzo
Prezzo
€ 375.970
Prezzo al m²
3.514 €/m²
Efficienza energetica
  • Stato

    Nuovo / In costruzione
  • Certificazione energetica

    Esente
Scopri ogni angolo dell'immobile
+23
Opzioni aggiuntive

Contatta l'inserzionista

Oppure