Trilocale nuovo, primo piano, Centar, Abbazia

€ 655.000
3
92 m²
2
1
Balcone
Arredato

Nota

Annuncio aggiornato il 30/04/2026
Descrizione

This description has been translated automatically and may not be accurate

riferimento: 14853

OPATIJA, LUXURIOUS APARTMENT WITH A SEA VIEW, IN A NEW RESIDENTIAL COMPLEX WITH POOL!

For sale is a luxurious apartment, 2 bedrooms + living room, in a new residential complex with a shared pool, an elevator and an underground garage located in a quiet location near the sea and the center of Opatija!

This premium property offers you modern design, luxurious elegance, privacy and comfort, and a spectacular view of the sea, and with its modern architectural style and the finest materials, it sets new standards of luxury. Thanks to its location in a quiet part of Opatija, you will enjoy a sense of privacy and peace and at the same time a stunning view of the center of Opatija and charming coast of the Adriatic Sea.

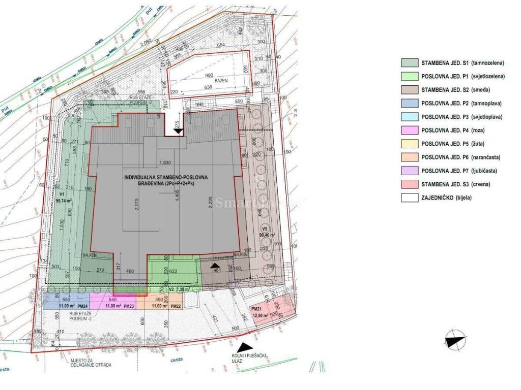
APARTMENT P3
2 bedrooms, 2 bathrooms, 1 toilet
total area of the apartment expressed with coefficients: 92.14 m2
total gross area of the apartment: 96.56 m2
internal area of the apartment: 74.96 m2
balcony: 21.06 m2
1 garage parking space PM18: 12.75 m2

This beautiful apartment is designed for maximum comfort and luxury. At your disposal are an entrance hall, toilet, two bedrooms with en-suite bathrooms, spacious living room with kitchen and dining area, and spacious balcony - an ideal place to spend time with family and friends and enjoy a truly spectacular view of the sea and Opatija.

In addition, the apartment has 1 garage parking space, which gives you additional convenience.

EQUIPMENT
energy-efficient heating and cooling
premium aluminum carpentry
electrically operated aluminum blinds
superior sanitary facilities
anti-burglary entrance door
elevator
shared pool

This premium property offers you an incredible luxury living space with high-quality equipment and a spectacular view of the sea, and is located in the immediate vicinity of the sea and beaches and all the necessary facilities, which makes your everyday life extremely practical and comfortable.

Opatija, the pearl of the Adriatic, is one of the most sought-after and desirable places for living and vacationing in Croatia. Its irresistible combination of natural beauty, rich history and architecture, and modern facilities make it a truly extraordinary and enchanting destination.

PRICE
The stated price refers to a completely finished apartment on a turnkey basis, without furniture. The price includes 25% VAT, the buyer doesnt pay the real estate transfer tax. In case of buying on a legal entity registered in Croatia it is possible to refund full VAT after the purchase.

For more information and a viewing appointment call: +385/99/320-0008

ID CODE: 14853

Agencija Opatija
Ovlašteni posrednik
Mob: +385/99/320-0008
E-mail: office@smart-invest.hr
www.smart-invest.hr
Se vuoi saperne di più, puoi parlare con Agencija Opatija.
Caratteristiche
Tipologia
Appartamento
Contratto
Vendita
Piano
1 piano
Ascensore
Superficie
92 m²
Locali
3
Camere da letto
2
Bagni
2
Arredato
Balcone
Terrazzo
No
Box, posti auto
1 in box privato/box in garage
Climatizzazione
Autonomo, freddo/caldo
Altre caratteristiche
  • Porta blindata
Informazioni sul prezzo
Prezzo
€ 655.000
Prezzo al m²
7.120 €/m²
Efficienza energetica
  • Anno di costruzione

    2024
  • Stato

    Nuovo / In costruzione
  • Climatizzatore

    Autonomo, freddo/caldo
  • Certificazione energetica

    Esente
Scopri ogni angolo dell'immobile
+23
Opzioni aggiuntive

Contatta l'inserzionista

Oppure