map icon

Trilocale nuovo, terzo piano, Sušak, Fiume

FiumeSušak
€ 720.000
3
97 m²
1
3
Terrazzo
Arredato

Nota

Annuncio aggiornato il 17/11/2025
Descrizione

This description has been translated automatically and may not be accurate

riferimento: 13843

RIJEKA PEČINE, NEW SEAFRONT RESIDENTIAL BUILDING WITH DIRECT ACCESS TO A BEACH!

For sale is a luxury seafront apartment, 2 bedrooms + living room, with a spacious terrace, a panoramic view of the sea and 2 garage parking spaces.

The new residential complex of top quality is situated on a unique location - first line to the sea, with direct access to a beach, and at the same time close to the center of Rijeka and all amenities. It consists of 7 luxury apartments and an underground garage connected to the residential area by an elevator. All apartments are oriented towards the sea, with lots of sunlight and a beautiful panoramic view of the Kvarner Bay.

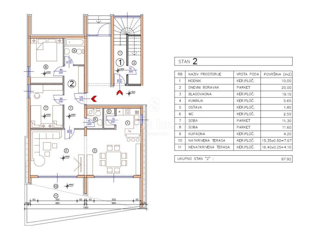
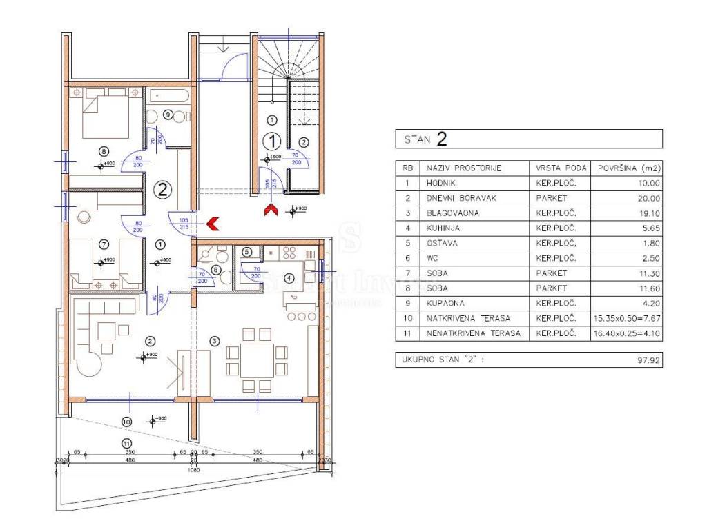
APARTMENT S2 - 2 bedrooms + living room, with a total net area of 97.92 m2 - situated on the 3rd floor on the south side (on the side of the entrance, the height of the ground floor). Consists of a corridor, living room, kitchen with dining area and storage room, two bedrooms, bathroom, toilet (total internal area 86.15 m2) and a covered terrace of 15.35 m2 and an uncovered terrace of 16.40 m2.

The apartment also has 2 parking spaces in the garage.

The apartment will be equipped with a SMART HOME remote control system, underfloor heating on a heat pump, an anti-burglary entrance door etc.

A rare and sought-after location, first line to the sea and only a 10-minute walk to the city center!

PRICE
The stated price refers to a completely finished apartment on a turnkey basis, without furniture. The price includes 25% VAT, the buyer doesnt pay the real estate transfer tax. In case of buying on a legal entity registered in Croatia it is possible to refund full VAT after the purchase.

For more information and a viewing appointment call: +385/99/320-0008

ID CODE: 13843

Agencija Opatija
Ovlašteni posrednik
Mob: +385/99/320-0008
E-mail: office@smart-invest.hr
www.smart-invest.hr
Se vuoi saperne di più, puoi parlare con Agencija Opatija.
Caratteristiche
Tipologia
Appartamento
Contratto
Vendita
Piano
3 piano
Ascensore
Superficie
97 m²
Locali
3
Camere da letto
2
Bagni
1
Arredato
Balcone
No
Terrazzo
Box, posti auto
1 in box privato/box in garage
Climatizzazione
Autonomo, freddo/caldo
Altre caratteristiche
  • Porta blindata
Informazioni sul prezzo
Prezzo
€ 720.000
Prezzo al m²
7.423 €/m²
Efficienza energetica
  • Anno di costruzione

    2023
  • Stato

    Nuovo / In costruzione
  • Climatizzatore

    Autonomo, freddo/caldo
  • Certificazione energetica

    Esente
Scopri ogni angolo dell'immobile
+10
Opzioni aggiuntive

Contatta l'inserzionista

Oppure