Terreno edificabile in Vendita

€ 220.000
803 m²

Nota

Annuncio aggiornato il 08/05/2026
Descrizione

riferimento: 42714

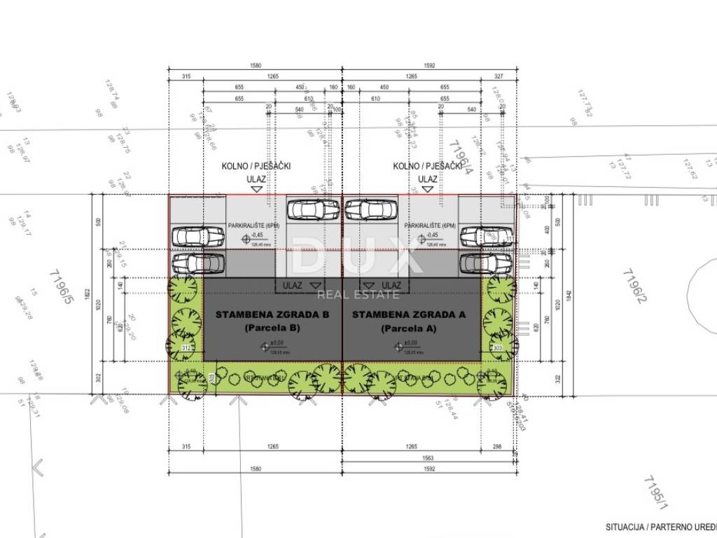
ZAGREBAČKA, DONJI STUPNIK - Izvrsna investicija građevinsko zemljište s projektom i dozvolom!

Na prodaju su dvije povezane građevinske parcele ukupne površine 579 m, koje dolaze s ishođenim i pravomoćnim građevinskim dozvolama za izgradnju dviju poluugrađenih stambenih zgrada. Projekt predviđa ukupno šest komfornih stanova, svaki veličine oko 70 m, odnosno ukupno 420 m neto stambenog prostora. Radi se o projektu koji je spreman za realizaciju odmah, što ovu nekretninu čini idealnom za investitore i sve koji žele izbjeći dugotrajan proces ishođenja dozvola i papirologije.

Uz građevinske čestice, u cijenu je uključeno i dodatnih 224 m razmjernog suvlasništva u pristupnom putu, čime ukupna površina koja se prenosi u vlasništvo iznosi 803 m. Pristupna cesta je već uređena i funkcionalna; položeni su vodovodni priključci, cijevi za oborinsku odvodnju i priprema za telefonske instalacije. Osim toga, prometnica je završno uređena drobljenim asfaltom, a duž nje su postavljeni stupovi za struju, uključujući i solarnu rasvjetu.

Parcele su smještene na blagoj uzvisini iznad pristupne prometnice, što omogućuje otvoren i neometan pogled prema Sljemenu i Žumberačkoj gori. Lokacija je izuzetno praktična za svakodnevni život jer se u neposrednoj blizini nalaze autobusna stanica, škola, vrtić, dom zdravlja i trgovački centar.

U cijenu su uključene dvije planirane građevinske parcele, suvlasnički udio u pristupnom putu, projektna dokumentacija, pravomoćne građevinske dozvole te kompletna priprema infrastrukture u pristupnoj cesti, uključujući vodovod, oborinsku kanalizaciju i telefoniju, kao i uređena prometnica s postavljenim stupovima za električnu energiju. Ponuda ne uključuje troškove priključaka na komunalne sustave kao što su voda, struja i kanalizacija, niti plaćanje komunalnog i vodnog doprinosa.

Ova nekretnina predstavlja izvrsnu priliku za gradnju bez dodatnog čekanja projekt je spreman, dokumentacija je uredna, a sve što preostaje jest započeti izgradnju.

Poštovani klijenti, agencijska provizija naplaćuje se u skladu s Općim uvjetima poslovanja:
www.dux-nekretnine.hr/opci-uvjeti-poslovanja

ID KOD AGENCIJE: 42714

Lejla Jajčanin
Agent s licencom
Mob: +385 91 934 2513
Tel: +385 91 480 8808
E-mail: lejla@dux-nekretnine.hr
www.dux-dalmacija.com

Mirna Lukić
Agent pripravnik
Mob: +385 99 769 9927
Tel: +385 91 480 8808
E-mail: mirna@dux-nekretnine.hr
www.dux-nekretnine.hr
Se vuoi saperne di più, puoi parlare con Lejla Jajčanin.
Caratteristiche
Contratto
Vendita
Tipologia
Terreno edificabile
Superficie
803 m²
Informazioni sul prezzo
Prezzo
€ 220.000
Prezzo al m²
274 €/m²
Scopri ogni angolo dell'immobile
+7
Opzioni aggiuntive

Contatta l'inserzionista

Oppure