Trilocale nuovo, piano terra, Luka, Parenzo

€ 305.000
3
66 m²
1
T

Nota

Annuncio aggiornato il 26/03/2026
Descrizione

This description has been translated automatically and may not be accurate

riferimento: 41558

ISTRIA, POREČ - Apartment 2 bedrooms + living room with a garden in a beautiful location!

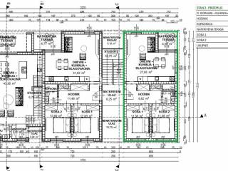
In the offer of DUX real estate we present an apartment in a new project in a great location in the city of Poreč near schools, shops, beaches and all other amenities. The project is located in a quiet street surrounded by family houses in the immediate vicinity of the green area of the city of Poreč. The apartment offers 66 m2 of living space and a 140 m2 garden. The apartment also comes with two parking spaces and a 5 m2 storage room. Start of work 9/2025, expected end of work 12/2026. TECHNICAL FEATURES: 1. underfloor heating with a heat pump throughout the apartment 2. electric shutters with mosquito nets 3. 3 air conditioners 4. preparation for a charger for electric cars The apartment consists of an entrance hall, two bedrooms, bathroom, living room with kitchen and dining room in one open space with access to a covered terrace and garden. The seller is a legal entity, therefore the buyer is exempt from paying real estate tax.

Dear clients, the agency commission is charged in accordance with the General Business Conditions: www.dux-nekretnine.hr/opci-uvjeti-poslovanja

ID CODE: 41558

Ivana Škoro
Agent s licencom
Mob: +385 95 388 1059
Tel: +385 91 480 8808
E-mail: ivana@dux-istra.com
www.dux-istra.com
Se vuoi saperne di più, puoi parlare con Ivana Škoro.
Caratteristiche
Tipologia
Appartamento
Contratto
Vendita
Piano
Piano terra
Superficie
66 m²
Locali
3
Camere da letto
2
Bagni
1
Balcone
No
Terrazzo
No
Climatizzazione
Autonomo, freddo/caldo
Informazioni sul prezzo
Prezzo
€ 305.000
Prezzo al m²
4.621 €/m²
Efficienza energetica
  • Stato

    Nuovo / In costruzione
  • Climatizzatore

    Autonomo, freddo/caldo
  • Certificazione energetica

    Esente
Scopri ogni angolo dell'immobile
+3
Opzioni aggiuntive

Contatta l'inserzionista

Oppure