Trilocale nuovo, piano terra, Ražanaz

€ 242.830
3
69 m²
1
T
Terrazzo

Nota

Annuncio aggiornato il 02/05/2026
Descrizione

This description has been translated automatically and may not be accurate

riferimento: 41098

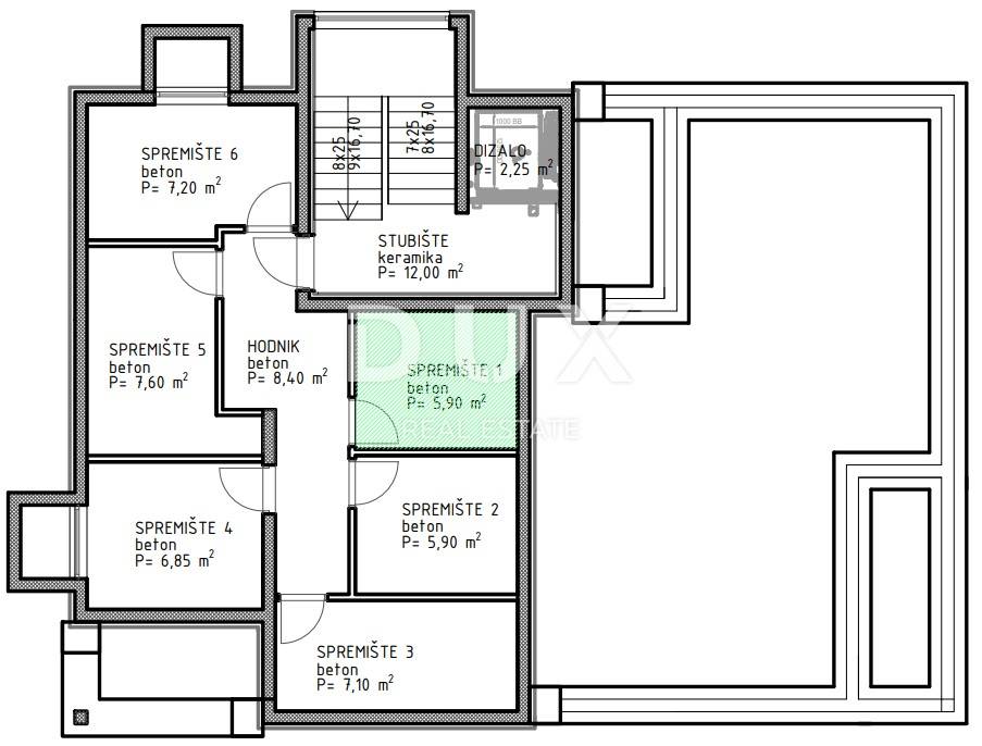
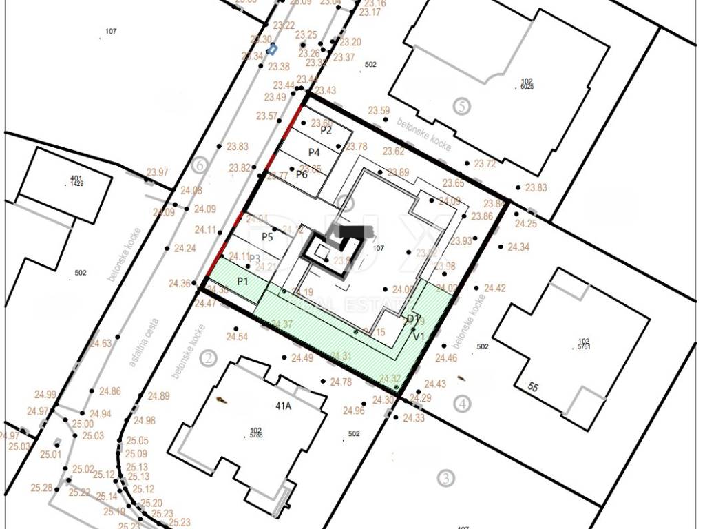
ZADAR, RAŽANAC - New construction! Underfloor heating, elevator, sea view, storage...! S1.

For sale are top-quality apartments in a new building located in the quiet and picturesque town of Ražanac, ideal for living, vacation or investment. The building has a total of six modernly designed apartments, each with its own storage room in the basement and its own parking space. They are only 320 meters away from the pebble beach with a view of Velebit. The building is equipped with an elevator, and all apartments have underfloor heating throughout, which guarantees a pleasant temperature throughout the year. Each unit also has built-in air conditioning in all rooms, which further contributes to comfort. Apartment S1 on the ground floor offers the perfect combination of functionality and comfort it consists of two bedrooms, a modern bathroom, a spacious living room with kitchen and dining room, a covered terrace and its own garden. In addition to intimacy and greenery, this apartment also offers a partial view of the sea. The planned completion is by the end of 2025. Ražanac is a charming Dalmatian town that combines peace, nature and traditional Mediterranean spirit. Its beaches are known for their exceptional cleanliness and spectacular views of the mighty Velebit, creating breathtaking scenes. It is ideal for anyone looking for an escape from the hustle and bustle of everyday life and want to enjoy an authentic coastal ambiance. For more information or a viewing, please feel free to contact us - the apartments are ready to move in, and this opportunity rarely comes along.

Dear clients, the agency commission is charged in accordance with the General Terms and Conditions www.dux-nekretnine.hr/opci-uvjeti-poslovanja

ID CODE: 41098

Josip Šestan
Agent s licencom
Mob: +385 91 799 6986
Tel: +385 91 480 8808
E-mail: josip@dux-dalmacija.com
www.dux-dalmacija.com
Se vuoi saperne di più, puoi parlare con Josip Šestan.
Caratteristiche
Tipologia
Appartamento
Contratto
Vendita
Piano
Piano terra
Ascensore
Superficie
69 m²
Locali
3
Camere da letto
2
Bagni
1
Balcone
No
Terrazzo
Climatizzazione
Autonomo, freddo/caldo
Informazioni sul prezzo
Prezzo
€ 242.830
Prezzo al m²
3.519 €/m²
Efficienza energetica
  • Anno di costruzione

    2025
  • Stato

    Nuovo / In costruzione
  • Climatizzatore

    Autonomo, freddo/caldo
  • Certificazione energetica

    Esente
Scopri ogni angolo dell'immobile
+21
Opzioni aggiuntive

Contatta l'inserzionista

Oppure