Terreno edificabile in Vendita

€ 205.000
620 m²

Nota

Annuncio aggiornato il 04/02/2026
Descrizione

riferimento: 38911

CRIKVENICA Zemljiste s dozvolom za luksuznu obiteljsku kuću s 4 spavaće sobe i bazenom

Na prodaju je građevinsko zemljište u Crikvenici s već ishodovanom građevinskom dozvolom za izgradnju moderne obiteljske kuće s bazenom - komunalije plaćene!

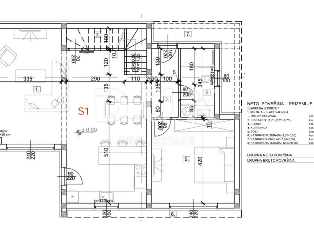
Projektirana kuća: samostojeća, P+1, ravni neprohodni krov
Bruto površina: cca 200 m (razvedeni tlocrt: 14,60 x 9,80 m)
Sadržaj prizemlja: hodnik, kupaonica, spremište, spavaća soba, kuhinja s blagovaonicom i dnevnim boravkom, izlaz na natkrivenu terasu
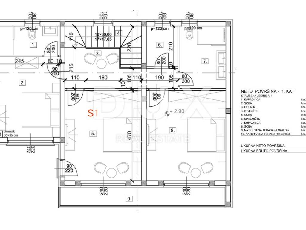
Kat: tri spavaće sobe, dvije kupaonice, hodnik, spremište i dvije natkrivene terase
Bazen: nepravilnog oblika s max. dimenzijama 6,0 x 5,05 m
Moderan dizajn: svijetla fasada, detalji u kamenu ili drvu
Kvalitetna gradnja: AB konstrukcija, ETICS fasadni sustav, PVC stolarija s izo staklom

Planirano grijanje/hlađenje: klima uređaji (split sistem), mogućnost peći na biomasu
Prirodno osvjetljenje i ventilacija u svim prostorijama

Ovo zemljište predstavlja odličnu priliku za realizaciju vrhunskog projekta s već pripremljenom dokumentacijom. Smješteno je u mirnom i urbaniziranom dijelu Crikvenice, s brzom povezanošću do svih sadržaja.

Za više informacija i termin obilaska kontaktirajte nas odmah!

Poštovani klijenti, agencijska provizija naplaćuje se u skladu s Općim uvjetima poslovanja
www.dux-nekretnine.hr/opci-uvjeti-poslovanja

ID KOD AGENCIJE: 38911

Mladen Tićak
Agent s licencom
Mob: +385 97 775 2147
Tel: +385 91 480 8808
E-mail: mladen@dux-istra.com
www.dux-istra.com

Marco Matešković
Agent s licencom
Mob: +385 98 13 77 003
Tel: +385 91 480 8808
E-mail: marco@dux-nekretnine.hr
www.dux-nekretnine.hr
Se vuoi saperne di più, puoi parlare con Mladen Tićak.
Caratteristiche
Contratto
Vendita
Tipologia
Terreno edificabile
Superficie
620 m²
Informazioni sul prezzo
Prezzo
€ 205.000
Prezzo al m²
331 €/m²
Scopri ogni angolo dell'immobile
+2
Opzioni aggiuntive

Contatta l'inserzionista

Oppure