Trilocale nuovo, secondo piano, Kolan

€ 399.000
3
85 m²
2
2
Terrazzo

Nota

Annuncio aggiornato il 25/01/2026
Descrizione

This description has been translated automatically and may not be accurate

riferimento: 38362

PAG ISLAND, MANDRE - 2 bedroom + bathroom penthouse with roof terrace

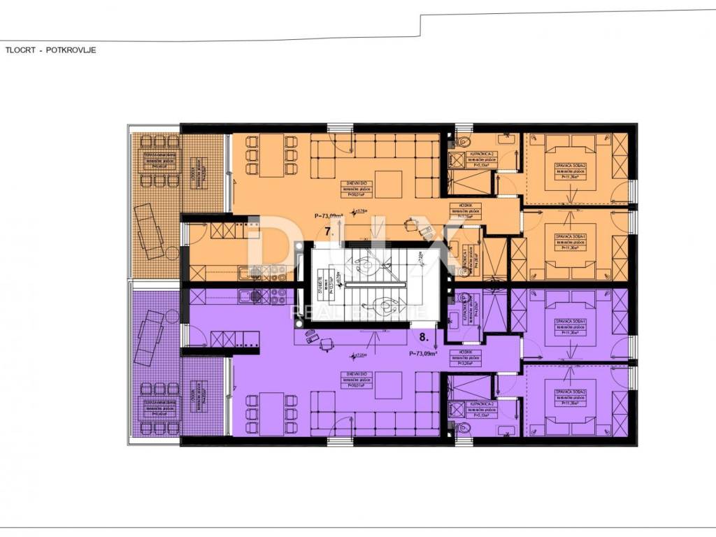
We are selling this excellent penthouse 2 bedroom apartment on the second floor of a quality residential building with eight residential units. Apartment S8 with a living area of 85.43 m2, consisting of an entrance hall, two bathrooms, a living room with kitchen and dining room with access to the loggia, and two bedrooms with a roof terrace of 70 m2 and a panoramic view of the sea. Apartment S8 has a storage room as well as a parking space in the property. The residential building of eight residential units is completely finished and ready to move into. All apartments will be sold in the turnkey phase, where the buyer is left to furnish them according to their own wishes. The residential building is located in an excellent location, only a hundred meters from the sea and beaches.

Dear clients, the agency commission is charged in accordance with the General Business Conditions www.dux-nekretnine.hr/opci-uvjeti-poslovanja

ID CODE: 38362

Darko Miculinić
Vanjski suradnik
Mob: +385 91 899 5705
Tel: +385 91 480 8808
E-mail: darko@dux-nekretnine.hr
www.dux-nekretnine.hr
Se vuoi saperne di più, puoi parlare con Darko Miculinić.
Caratteristiche
Tipologia
Appartamento
Contratto
Vendita
Piano
2 piano
Superficie
85 m²
Locali
3
Camere da letto
2
Bagni
2
Balcone
No
Terrazzo
Climatizzazione
Autonomo, freddo/caldo
Informazioni sul prezzo
Prezzo
€ 399.000
Prezzo al m²
4.694 €/m²
Efficienza energetica

Consumo di energia

A+

Scopri ogni angolo dell'immobile
+14
Opzioni aggiuntive

Contatta l'inserzionista

Oppure