Quadrilocale nuovo, primo piano, Vodizze

€ 285.000
4
96 m²
1
1
Terrazzo

Nota

Annuncio aggiornato il 16/01/2026
Descrizione

This description has been translated automatically and may not be accurate

riferimento: 36751

ŠIBENIK, VODICE - Apartment S5 in a new building in a great location

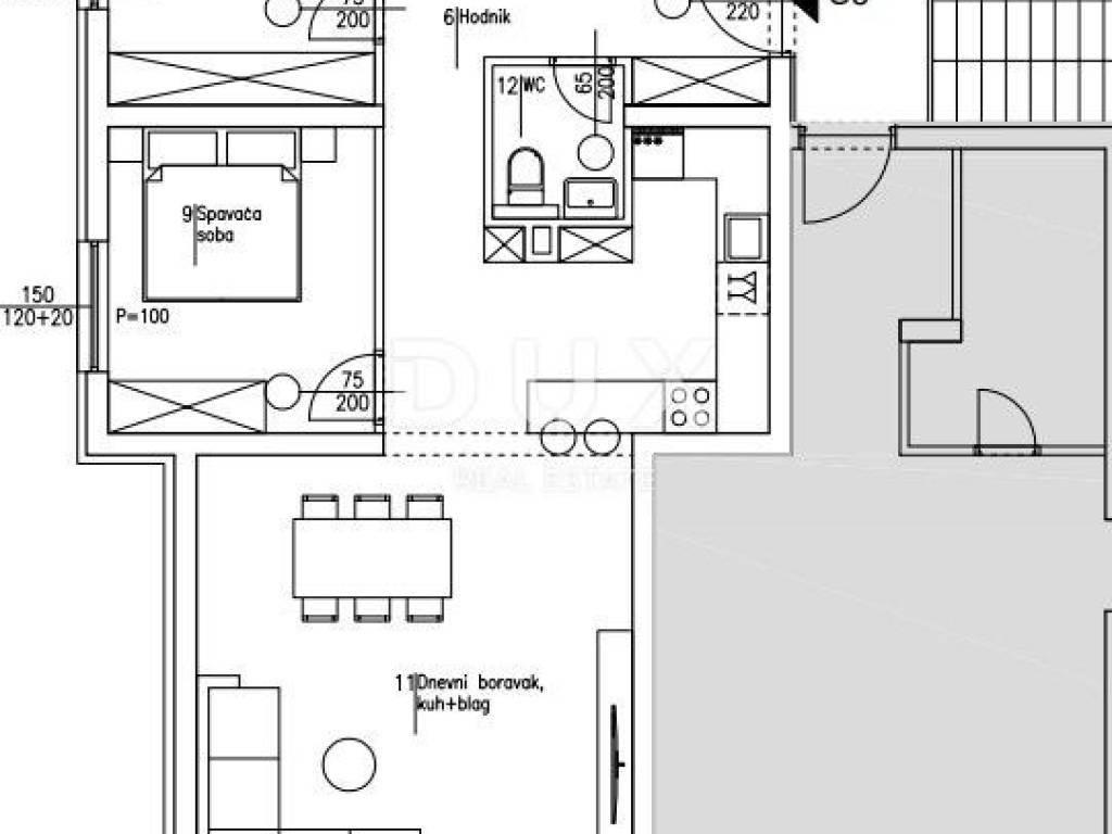
Apartment for sale in Vodice near Šibenik. The apartment with a total living area of 88.61 m2 is located on the first floor of a small residential building with 6 units. It consists of a hallway, toilet, bathroom, three bedrooms, a spacious living room, dining room and kitchen. The living room leads to a covered terrace ideal for socializing with friends and family. The apartment has one parking space. The total usable area of the apartment with all accessories is 96.61 m2. Quality materials were used in the construction, and attention was paid to detail during construction. The property is only 1 km from the town center and the sea. VODICE - The charming nightlife town and beach of Vodice is a small tourist destination located 10 kilometers north of Šibenik. They are popular among young visitors looking for lively places. Vodice boasts great hotels, beaches and a rich nightlife offer. The name "Vodice" was first mentioned in written works in 1402, although it is known that people lived there in Roman times. The place was named "Vodice" because of the abundance of water and wells. Nearby is the islet of Prvić, the city of Split is 69 km away, Zadar is 59 km away, and the nearest airport is 49 km away.

Dear clients, the agency commission is charged in accordance with the General Terms and Conditions: www.dux-nekretnine.hr/opci-uvjeti-poslovanja

ID CODE: 36751

Ivan Bego
Agent pripravnik
Mob: +385 91 312 1121
Tel: +385 91 480 8808
E-mail: ivan@dux-dalmacija.com
www.dux-nekretnine.hr
Se vuoi saperne di più, puoi parlare con Ivan Bego.
Caratteristiche
Tipologia
Appartamento
Contratto
Vendita
Piano
1 piano
Superficie
96 m²
Locali
4
Camere da letto
3
Bagni
1
Balcone
No
Terrazzo
Climatizzazione
Autonomo, freddo/caldo
Informazioni sul prezzo
Prezzo
€ 285.000
Prezzo al m²
2.969 €/m²
Efficienza energetica
  • Anno di costruzione

    2025
  • Stato

    Nuovo / In costruzione
  • Climatizzatore

    Autonomo, freddo/caldo
  • Certificazione energetica

    Esente
Scopri ogni angolo dell'immobile
+14
Opzioni aggiuntive

Contatta l'inserzionista

Oppure