Trilocale nuovo, piano terra, Zapad, Abbazia

€ 346.800
3
69 m²
2
1
Balcone
Terrazzo

Nota

Annuncio aggiornato il 01/05/2026
Descrizione

This description has been translated automatically and may not be accurate

riferimento: 35818

OPATIJA, IKA - New Building, Apartment with Terrace and Sea View, Close to the Beach and Opatija

Exclusively, only in our offer, DUX presents a fantastic opportunity to purchase a new building in Opatija with optimal square footage.

Apartment Description
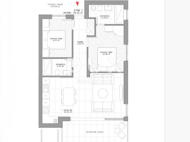
Apartment S1 consists of a hallway, two bedrooms, two bathrooms, and a living room connected to the kitchen, dining room, and terrace.

Key Features of the Building

Ideal floor plans
South-facing living room with access to the terrace
Covered terraces with sea views
Top-quality parquet, ceramics, sanitary ware, and doors
Aluminum joinery
Large sliding walls
Two parking spaces are included in the purchase price. All apartments offer a quality view of the sea.

Location
The building is located in a quiet and private street with no active traffic, only 400 meters as the crow flies from the sea. The future owner can walk to the beach in ten minutes, drive there in only two minutes, and reach the center of Opatija in eight minutes.

Construction and Move-In Details
This position under construction is currently one of the rare opportunities for the realization of a new building with optimal square footage in Opatija. The property is being sold "turnkey," which means the apartment is furnished and ready to move in. The planned move-in is in the summer of 2026.

Contact Information
To arrange a visit to the property, call the agent with confidence consultation in German is possible.

Important Information
Dear clients, the agency commission is charged in accordance with the General Terms and Conditions: www.dux-nekretnine.hr/opci-uvjeti-poslovanja

ID CODE: 35818

Marko Šutanovac
Agent s licencom
Mob: +385 91 189 8332
Tel: +385 91 480 8808
E-mail: marko@dux-nekretnine.hr
www.dux-opatija.com
Se vuoi saperne di più, puoi parlare con Marko Šutanovac.
Caratteristiche
Tipologia
Appartamento
Contratto
Vendita
Piano
1
Ascensore
Superficie
69 m² | commerciale 1.269 m²
Locali
3
Camere da letto
2
Bagni
2
Balcone
Terrazzo
Dettaglio superficie

Abitazione

Piano
1
Superficie
69,0 m²
Coefficiente
100%
Tipo superficie
Principale
Sup. commerciale
69,0 m²

Terreno

Piano
Piano terra
Superficie
1.200,0 m²
Coefficiente
100%
Tipo superficie
Accessoria
Sup. commerciale
1.200,0 m²
Informazioni sul prezzo
Prezzo
€ 346.800
Prezzo al m²
273 €/m²
Efficienza energetica

Consumo di energia

A+

Scopri ogni angolo dell'immobile
+19
Opzioni aggiuntive

Contatta l'inserzionista

Oppure