map icon

Bilocale nuovo, primo piano, Sušak, Fiume

FiumeSušak
€ 360.000
2
43 m²
1
1
Balcone
Terrazzo

Nota

Annuncio aggiornato il 17/11/2025
Descrizione

This description has been translated automatically and may not be accurate

riferimento: 33184

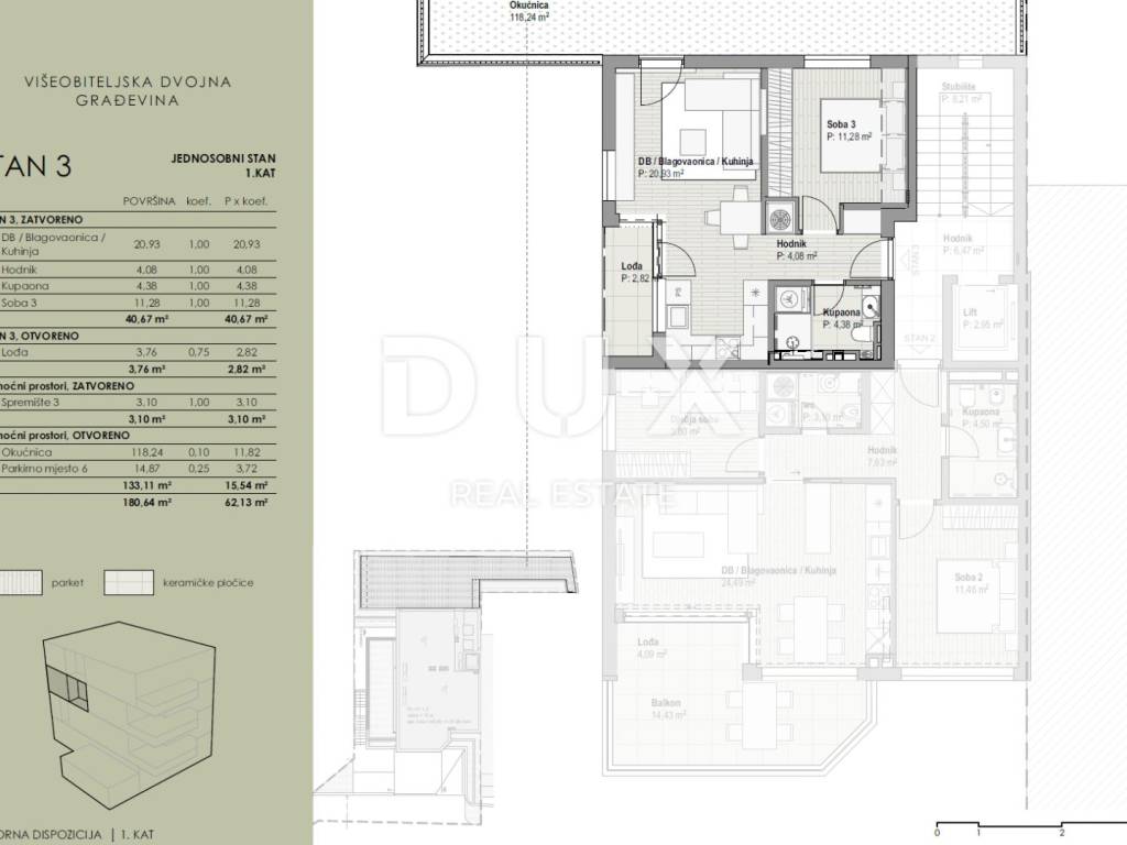
COSTABELLA, BIVIO, KANTRIDA - exclusive apartment 43.44m2, 1st floor, 100m from the sea, beautiful view + garden 118m2 - APARTMENT 3

APARTMENT 3 - One-room apartment, located in the zone of the 1st floor with a loggia and its own garden. Auxiliary spaces consist of a separate storage room and 1 open parking space. IDEA OF THE PROJECT: The project represents a vision of housing construction that focuses on modern solutions and quality of life in apartments. DESCRIPTION AND ORGANIZATION: The entire building on its 4 floors accommodates four apartments of different square footage and a basement with garage space. For parking purposes, the majority of parking spaces are located inside the basement floor, which will have been prepared for charging electric cars, i.e. channels for electricity supply have been installed. If the owner of the apartment needs a charging station, all he has to do is run the cables and get the power for electricity. In addition to parking in the basement or on the lot, each apartment is assigned its own storage room. The main entrance to the building is located on the ground floor, which is reached by an external staircase. The apartments are accessed via a communication vertical within which the staircase and elevator are closed. When designing, the investors were guided by the idea that all apartments should have living spaces facing south or west with the possibility of exiting to the outside, to give the apartments maximum privacy and the possibility of a view. They organized the apartments so that the spaces are used as well as possible and suitable for storing wardrobes or other things. Each apartment has a place for a wardrobe in the entrance area, in addition to the spacious wardrobes in all bedrooms. LOCATION: The plot is located in Costabella - Bivio, which is a very attractive location due to its location in relation to Rijeka, Opatija, the proximity of the sea, the ring road and other facilities. The facility is located in the western part of the city of Rijeka. The immediate proximity to the sea within walking distance offers the opportunity to make the most of the summer season, fresh air and a panoramic view of the Kvarner Bay. The location is very well connected with expressways and highways to other parts of the city, Istria, the rest of Croatia and surrounding countries. To the west of the location is Opatija, accessible via the main road directly next to the enclosure. Opatija is famous for being a very famous tourist and therapeutic destination, which is also called "the pearl of the Adriatic coast". Social facilities such as kindergartens, schools, sports halls, and shops are located within a radius of 2 km. This property is 100 meters from the sea as the crow flies, or 1 minute on foot. A property from which you can literally walk to the sea and the beach in one minute! A UNIQUE PROPERTY DEFINITELY WORTH YOUR ATTENTION IN A GREAT LOCATION!!

Dear clients, the agency commission is charged in accordance with the General Business Conditions: www.dux-nekretnine.hr/opci-uvjeti-poslovanja

ID CODE: 33184

Patrik Hrštić
Agent s licencom
Mob: +385 91 270 3979
Tel: +385 91 480 8808
E-mail: patrik@dux-nekretnine.hr
www.dux-opatija.com
Se vuoi saperne di più, puoi parlare con Patrik Hrštić.
Caratteristiche
Tipologia
Appartamento
Contratto
Vendita
Piano
1
Ascensore
Superficie
43 m² | commerciale 161 m²
Locali
2
Camere da letto
1
Bagni
1
Balcone
Terrazzo
Box, posti auto
1 in box privato/box in garage
Climatizzazione
Autonomo, freddo/caldo
Dettaglio superficie

Abitazione

Piano
1
Superficie
43,0 m²
Coefficiente
100%
Tipo superficie
Principale
Sup. commerciale
43,0 m²

Terreno

Piano
Piano terra
Superficie
118,0 m²
Coefficiente
100%
Tipo superficie
Accessoria
Sup. commerciale
118,0 m²
Informazioni sul prezzo
Prezzo
€ 360.000
Prezzo al m²
2.236 €/m²
Efficienza energetica
  • Stato

    Nuovo / In costruzione
  • Climatizzatore

    Autonomo, freddo/caldo
  • Certificazione energetica

    Esente
Scopri ogni angolo dell'immobile
+17
Opzioni aggiuntive

Contatta l'inserzionista

Oppure