Quadrilocale nuovo, primo piano, Centar, Abbazia

€ 1
4
155 m²
3
1
Balcone
Terrazzo
Arredato

Nota

Annuncio aggiornato il 03/05/2026
Descrizione

This description has been translated automatically and may not be accurate

riferimento: 27092

OPATIJA, CENTER - luxurious building of 155m2 with private pool, wellness, concierge, reception, garage

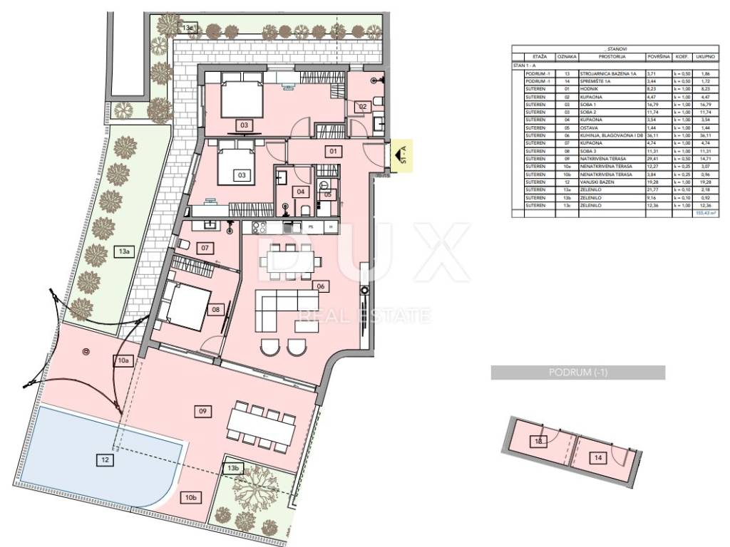
Exclusive apartment 1A of 155m2 is located in a new building in the heart of Opatija, only 200 meters from the famous main street and the coast. The new building represents a unique project with a beautiful panoramic view of the sea. Located in a quiet one-way street, surrounded by historic Austro-Hungarian villas, this project consists of two buildings with a total of 23 luxury units, including two underground garages. Apartment 1A consists of a hallway, three bedrooms, each of which has its own bathroom, a living room with kitchen and dining room, and a terrace with a private swimming pool of 19m2. Along with the ownership of the apartment comes two garage parking spaces, as well as a storage room. The apartment is fully furnished with new, high-quality furniture, ready to move into. It was designed by the best local interior designer BABALOO design. The apartment is equipped with high-quality materials, including underfloor heating and a SAMSUNG fan-coil system in all rooms. The external carpentry is made of ALU material SCHUCO, while the sanitary ware is selected from the ALICE NUR collection, and the fittings are GESSI VIA TORTONA/VIA MANZON. This unique project offers the ultimate level of comfort and exclusivity with a shared reception and concierge service for the entire building. In addition, tenants have at their disposal a common wellness area with a 12-meter swimming pool, three types of saunas and a private gym inside the building. A truly beautiful and valuable property in the very center of Opatija, which is a real rarity on the market, and therefore an ideal opportunity for investment. Dear clients, the agency commission is charged in accordance with the General Business Conditions: www.dux-nekretnine.hr/opci-uvjeti-poslovanja

ID CODE: 27092

Marko Šutanovac
Agent s licencom
Mob: +385 91 189 8332
Tel: +385 91 480 8808
E-mail: marko@dux-nekretnine.hr
www.dux-opatija.com
Se vuoi saperne di più, puoi parlare con Marko Šutanovac.
Caratteristiche
Tipologia
Appartamento
Contratto
Vendita
Piano
1 piano
Ascensore
Superficie
155 m²
Locali
4
Camere da letto
3
Bagni
3
Arredato
Balcone
Terrazzo
Box, posti auto
1 in box privato/box in garage
Climatizzazione
Autonomo, freddo/caldo
Informazioni sul prezzo
Prezzo
€ 1
Prezzo al m²
0 €/m²
Efficienza energetica

Consumo di energia

A+

Scopri ogni angolo dell'immobile
+23
Opzioni aggiuntive

Contatta l'inserzionista

Oppure