Terratetto unifamiliare 315 m², nuova, Pinguente

€ 115.000
4
315 m²
3+

Nota

Annuncio aggiornato il 04/02/2026
Descrizione

This description has been translated automatically and may not be accurate

riferimento: 12644

ISTRIA - BUZET The project of a modern villa overlooking the natural beauty of Istria

Buzet is located in the north of Istria near the border with Slovenia, and the old medieval town is located on a hill above a very fertile valley of the largest Istrian river Mirna. Today, Buzet is best known as the truffle town because of the divine tuber whose best hunting grounds in Istria are located in the forests along the Mirna valley. A city that invites you to touch the beauty of centuries-old architecture and experience an impressive view from the tops of the hills of northern Istria. Feel the city bathed in the river Mirna and its surroundings, which offer authentic pleasures at every step. With its flavors, aromas and colors, Buzet is special, self-denying and rich. It is a city where carefully preserved traditions and the spirit of modern heritage intertwine. Buzet awakens the senses, invites you to relax and unwind, offers the joy of living. He falls in love with the sunlit walls. Inhale the scents of his forests. Taste the rich flavors of homemade delicacies. Indulge in experiences, get to know its most hidden corners, feel the adventure, become a part of nature.

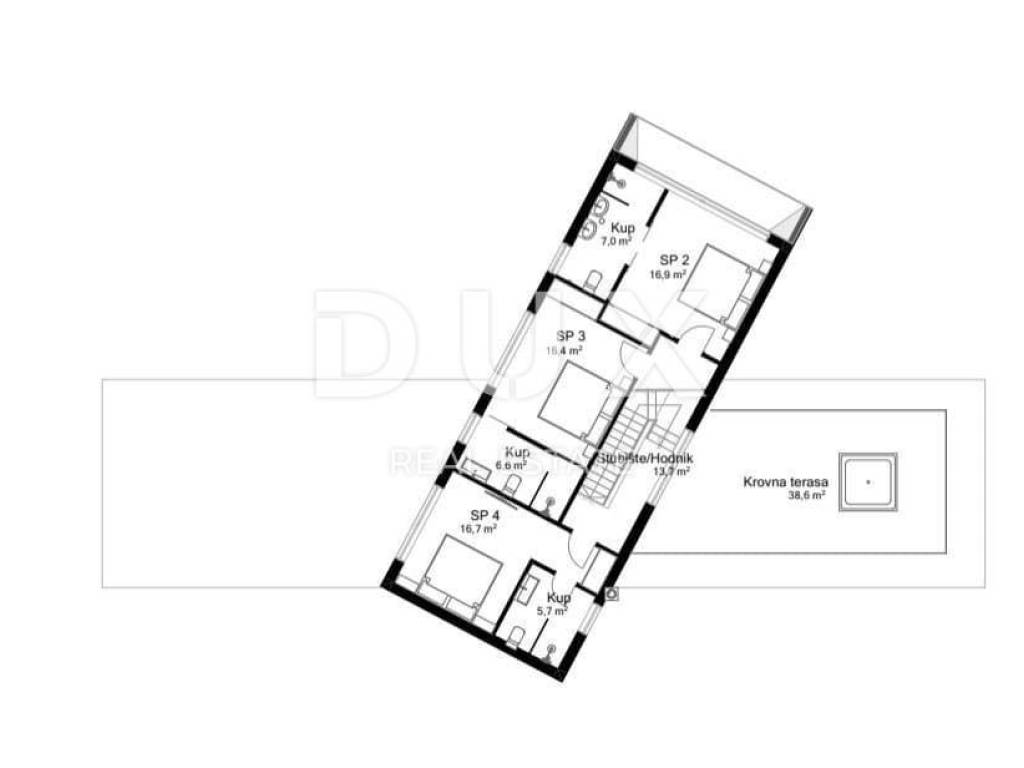
Not far from Buzet is a land with a project of 2000m2. As you can see in the pictures, the future villa has a beautiful view of nature, the river Mirna, Ćićarija and the Old Town of Buzet. The villa of 315m2 spreads over two floors. The first floor will consist of a living room, kitchen, spacious covered terrace, bedroom with bathroom, storage room, wellness and toilet. On the second floor there are three bedrooms with attached bathrooms and a roof terrace with a view, size 39m2. The project also includes a swimming pool of 48m2 and a tennis court and parking. The land has electricity and water and an asphalt road.

Dear clients, the agency commission is charged in accordance with the General Terms and Conditions. www.dux-nekretnine.hr/opci-uvjeti-poslovanja

ID CODE: 12644

DUX Pula
Mob: +385 91 480 8808
Tel: +385 51 518 174
E-mail: info@dux-istra.com
www.dux-istra.com
Caratteristiche
Tipologia
Terratetto unifamiliare
Contratto
Vendita
Piano
1
Superficie
315 m² | commerciale 2.315 m²
Locali
4
Camere da letto
4
Bagni
3+
Balcone
No
Terrazzo
No
Altre caratteristiche
  • Piscina
Dettaglio superficie

Abitazione

Piano
1
Superficie
315,0 m²
Coefficiente
100%
Tipo superficie
Principale
Sup. commerciale
315,0 m²

Terreno

Piano
Piano terra
Superficie
2.000,0 m²
Coefficiente
100%
Tipo superficie
Accessoria
Sup. commerciale
2.000,0 m²
Informazioni sul prezzo
Prezzo
€ 115.000
Prezzo al m²
50 €/m²
Efficienza energetica
  • Anno di costruzione

    2022
  • Stato

    Nuovo / In costruzione
  • Certificazione energetica

    Esente
Scopri ogni angolo dell'immobile
+8
Opzioni aggiuntive

Contatta l'inserzionista

Oppure