Trilocale nuovo, primo piano, Bescanuova

€ 285.000
3
62 m²
1
1

Nota

Annuncio aggiornato il 14/03/2026
Descrizione

This description has been translated automatically and may not be accurate

riferimento: a-1016

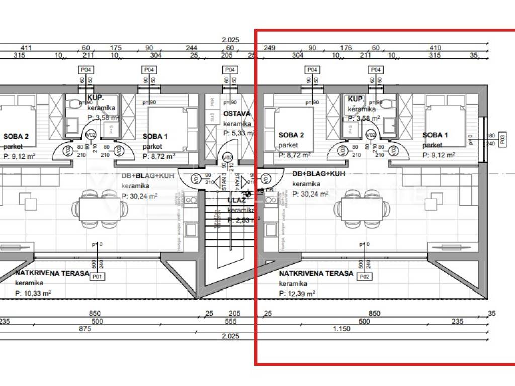
Real estate Island of Krk, Baška surroundings - for sale is an apartment on the first floor of a new building consisting of a total of four residential units. The apartment has a living area of 62 m2 and consists of an entrance hall, two bedrooms, a bathroom, a kitchen, a dining room and a living room with access to a covered terrace. It has two parking spaces in the common courtyard of the building. Quality materials and equipment are used for construction, including ceramic floor coverings, quality sanitary facilities, room air conditioning, built-in high-quality PVC carpentry with electric blinds and burglar-proof doors. It is located in a quiet location 4000 m from the sea, beautiful beaches and the center with all necessary facilities. The property is currently under construction, and the planned completion is expected in August 2024.
VAT is included in the price and the buyer does not pay real estate sales tax.
Agency Vala Estate Malinska will provide you with a safe and transparent transfer of ownership and all necessary documentation.

ID CODE: a-1016

VALA ESTATE d.o.o.
Mob: +385 99 444 0550
Tel: +385 51 568 917
E-mail: info@vala-estate.com
www.vala-estate.com
Caratteristiche
Tipologia
Appartamento
Contratto
Vendita
Piano
1 piano
Superficie
62 m²
Locali
3
Camere da letto
2
Bagni
1
Balcone
No
Terrazzo
No
Altre caratteristiche
  • Porta blindata
Informazioni sul prezzo
Prezzo
€ 285.000
Prezzo al m²
4.597 €/m²
Efficienza energetica
  • Anno di costruzione

    2024
  • Stato

    Nuovo / In costruzione
  • Certificazione energetica

    Esente
Scopri ogni angolo dell'immobile
+18
Opzioni aggiuntive

Contatta l'inserzionista

Oppure