Trilocale nuovo, secondo piano, Povliana

€ 223.776
3
62 m²
1
2
Terrazzo

Nota

Annuncio aggiornato il 19/02/2026
Descrizione

This description has been translated automatically and may not be accurate

riferimento: DA100065858

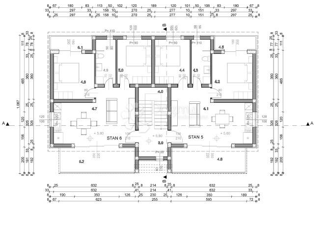
In an excellent location in Povljana, 400 m from the sandy beach and 120 m from the town center, there is a luxurious new building with a total of six apartments. The location offers a peaceful environment, proximity to amenities and an open view of the sea. The building is constructed with top-quality construction: reinforced concrete structure, Porotherm thermal brick, Italian ceramics, Hansgrohe sanitary ware, PVC joinery with 4S glazing, electric shutters and mosquito nets. The heating and cooling systems have Wi-Fi control, and underfloor heating is installed in the living rooms and bathrooms. The entrance doors are anti-burglary and fire-resistant by Dierre, and the staircase is covered with granite. Apartment S5 is located on the 2nd floor and has a total area of 62.16 m. The layout includes a living room with kitchen and dining room (24.58 m), two bedrooms (11.52 m and 9.70 m), a bathroom (5.27 m) and a hallway. The living room opens onto a 11.78 m terrace, while both bedrooms have access to a second 3.65 m terrace. The apartment is oriented on three sides, which ensures plenty of natural light and a sea view. The apartment also comes with a 13.50 m parking space with preparation for charging an electric car. The planned move-in date is by the end of 2026.

ID CODE: DA100065858

Vlatko Šaran
Agent s licencom
Mob: 098/429-832
Tel: 023/551-400
E-mail: vlatko.saran@dogma-nekretnine.com
www.dogma-nekretnine.com
Se vuoi saperne di più, puoi parlare con Vlatko Šaran .
Caratteristiche
Tipologia
Appartamento
Contratto
Vendita
Piano
2
Superficie
62 m² | commerciale 695 m²
Locali
3
Camere da letto
2
Bagni
1
Balcone
No
Terrazzo
Dettaglio superficie

Abitazione

Piano
2
Superficie
62,0 m²
Coefficiente
100%
Tipo superficie
Principale
Sup. commerciale
62,0 m²

Terreno

Piano
Piano terra
Superficie
633,0 m²
Coefficiente
100%
Tipo superficie
Accessoria
Sup. commerciale
633,0 m²
Informazioni sul prezzo
Prezzo
€ 223.776
Prezzo al m²
322 €/m²
Efficienza energetica

Consumo di energia

A+

Scopri ogni angolo dell'immobile
+4
Opzioni aggiuntive

Contatta l'inserzionista

Oppure