1/7


Trilocale nuovo, piano terra, Cittavecchia
€ 240.000
Annuncio aggiornato il 26/03/2026
Descrizione
riferimento: DA100065564
ID CODE: DA100065564
Siniša Klem
Agent s licencom
Mob: 095/399-4450
Tel: 022/646-360, 022/646-361
E-mail: sinisa.klem@dogma-nekretnine.com
www.dogma-dalmacija.com
Caratteristiche
- Tipologia
- Appartamento
- Contratto
- Vendita
- Piano
- Piano terra
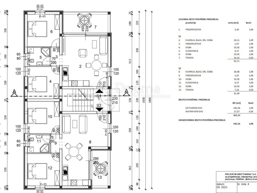
- Superficie
- 58 m²
- Locali
- 3
- Camere da letto
- 2
- Bagni
- 1
- Balcone
- No
- Terrazzo
- No
Informazioni sul prezzo
- Prezzo
- € 240.000
- Prezzo al m²
- 4.138 €/m²
Scopri ogni angolo dell'immobile
Opzioni aggiuntive