map icon

Trilocale nuovo, piano terra, Centar, Precco

Precco
€ 276.000
3
93 m²
2
T
Terrazzo

Nota

Annuncio aggiornato il 18/11/2025
Descrizione

This description has been translated automatically and may not be accurate

riferimento: DA100065498

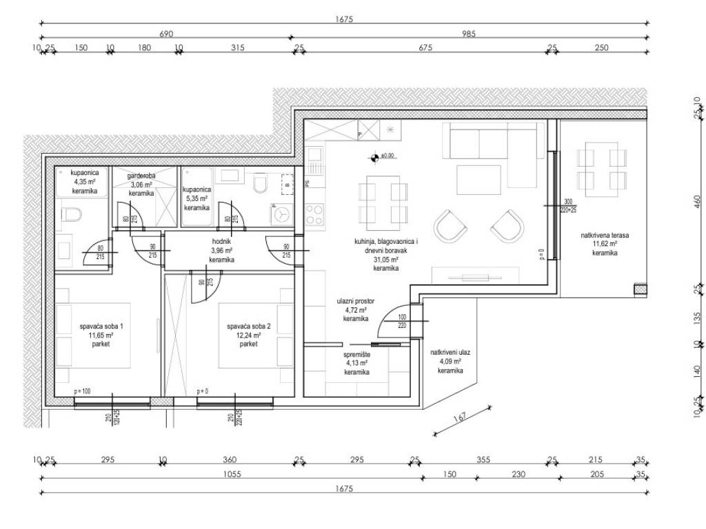
PREKO GROUND FLOOR APARTMENT WITH TWO BEDROOMS

The apartment is located in a smaller residential building with a total of three apartments. The building is situated in a quiet location, about 400 m from the sea.

Apartment S1 is on the ground floor. It consists of a hallway, kitchen, dining room and living room, two bedrooms, two bathrooms, a walk-in closet, and a storage room. From the living room, there is access to a covered terrace of 11.62 m, and next to it a smaller terrace of 4.09 m.

The apartment includes two parking spaces.

Building and equipment details:

Porotherm brick 25 cm
Insulation: 10 cm Styrofoam + white Baumit final facade
Underfloor heating in all rooms
Complete air-conditioning system with heating and cooling option
Panoramic lift-and-slide glass walls
Large-format Italian porcelain tiles (e.g., 75150 cm or 1.21.2 m)
Large-format ceramic tiles in bathrooms (60120 cm, 120120 cm)
High-quality sanitary ware Hansgrohe
Automatic LED yard lighting
Landscaping in authentic Dalmatian style
Exterior of the ground floor apartment to be clad in white stone

The buyer can choose equipment and materials in the early construction stages.

Financing available for EU citizens.
Croatias No. 1 real estate agency for 25 years.

For more information:
VEDRANA BAŠIĆ
Tel: +385919077396
E-mail: vedrana.basic@dogma-nekretnine.com

ID CODE: DA100065498

Vedrana Bašić
Asistent u posredovanju
Mob: 091/907-7396
Tel: 023/551-400
E-mail: vedrana.basic@dogma-nekretnine.com
www.dogma-nekretnine.com
Se vuoi saperne di più, puoi parlare con Vedrana Bašić .
Caratteristiche
Tipologia
Appartamento
Contratto
Vendita
Piano
Piano terra
Superficie
93 m²
Locali
3
Camere da letto
2
Bagni
2
Balcone
No
Terrazzo
Informazioni sul prezzo
Prezzo
€ 276.000
Prezzo al m²
2.968 €/m²
Efficienza energetica
  • Stato

    Nuovo / In costruzione
  • Certificazione energetica

    Esente
Scopri ogni angolo dell'immobile
+10
Opzioni aggiuntive

Contatta l'inserzionista

Oppure