Terratetto unifamiliare 297 m², Sebenico

€ 850.750
5+
297 m²
3+
Terrazzo

Nota

Annuncio aggiornato il 06/03/2026
Descrizione

This description has been translated automatically and may not be accurate

riferimento: DA100065217

Elegant Detached Seafront Villa Brodarica, Šibenik

For Sale: Elegant detached villa just steps from the sea, situated in the peaceful coastal village of Brodarica, renowned for its crystal-clear Adriatic, well-kept beaches, and excellent transport connections to the city of Šibenik and the surrounding area.

Key Features
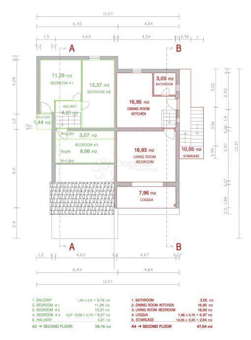
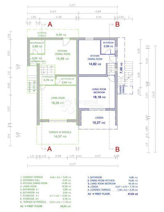
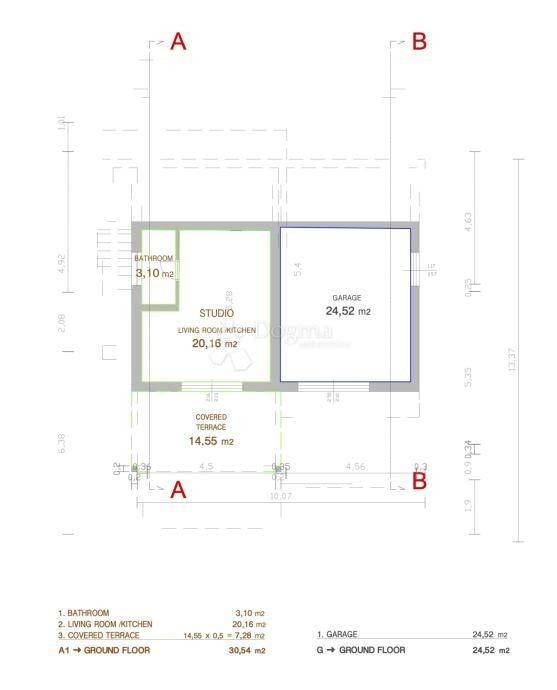
This spacious villa is spread over three levels ground floor, two upper floors, and an attic with a total built area of 297m (net 245m) on a 360m plot. The total usable area including the garden and parking spaces is an impressive 465m (net 272m). The main façade faces southwest, offering beautiful sea view.

The house comprises four fully independent, modernly equipped residential units, ideal for comfortable family living or tourist rental. Each unit has its own entrance and private outdoor area: spacious terraces, balconies with sea views, or cosy corners for relaxing in privacy.

Well-Designed Layout
The main apartment extends over three floors, featuring a large terrace with a bioclimatic pergola for year-round enjoyment. The other apartments are distributed across the levels, each with loggias and terraces that combine privacy with sea view.

High-Quality Construction and Fittings
Built with premium materials and fitted with high-end equipment, the villa was fully renovated in 2020, including a new roof, StoTherm Vario thermal façade, and quality PVC and aluminium joinery.

All apartments offer Danfoss electric underfloor heating, Redwell infrared heating, air conditioning, and a Buderus solar water heating system with Viessmann Vitocell tank. Bathrooms and kitchens are equipped with Marazzi ceramics, sanitaryware by Ceramica Flaminia, Geberit, TECE, and taps by Hansgrohe and Gessi.

Energy Efficiency and Modern Technology
The villa includes a dual solar power system (16kWh) with two Fronius inverters, Schneider Electric safety systems, and its own Wallbox Evlink EV charger (22kW). A 3-phase connection, bidirectional meter, and remote monitoring help reduce energy costs.

Landscaping and Outdoor Area
The yard is paved with Bradstone Old Town pavers in a natural white tone. An automated Rain Bird irrigation system keeps the lush greenery thriving, creating an inviting Mediterranean atmosphere perfect for a garden or lounge area. The garage with Hörmann Premium Plus doors and remote control provides security and ease of use, while the courtyard cellar offers extra storage, a wine cellar, or a summer kitchen.

Safety and Convenience
The garage doors open via Bluetooth or remote control, outdoor lighting is top quality.
A Smart Investment Opportunity
This villa offers the perfect combination of elegant family living and rental potential all residential units are completely separate, demand for quality accommodation is high, and maintenance is minimal thanks to its energy-efficient design.

Ready to Move In
A property that brings together elegance, sustainability, and functionality in one of the Adriatics most sought-after coastal locations. Ideal as a family home, holiday villa, or exclusive rental property.

Contact us today and secure your elegant home by the sea!

ID CODE: DA100065217

Draženka Blazinarić
Asistent u posredovanju
Mob: 091/796-2322
Tel: 022/646-360, 022/646-361
E-mail: drazenka.blazinaric@dogma-nekretnine.com
www.dogma-dalmacija.com
Se vuoi saperne di più, puoi parlare con Draženka Blazinarić.
Caratteristiche
Tipologia
Terratetto unifamiliare
Contratto
Vendita
Piano
1
Superficie
297 m² | commerciale 496 m²
Locali
5+
Camere da letto
6
Bagni
3+
Balcone
No
Terrazzo
Box, posti auto
1 in box privato/box in garage
Dettaglio superficie

Abitazione

Piano
1
Superficie
297,0 m²
Coefficiente
100%
Tipo superficie
Principale
Sup. commerciale
297,0 m²

Terreno

Piano
Piano terra
Superficie
199,0 m²
Coefficiente
100%
Tipo superficie
Accessoria
Sup. commerciale
199,0 m²
Informazioni sul prezzo
Prezzo
€ 850.750
Prezzo al m²
1.715 €/m²
Efficienza energetica
  • Anno di costruzione

    1990
  • Certificazione energetica

    Esente
Scopri ogni angolo dell'immobile
+16
Inserzionista
agent male

Draženka Blazinarić

scheda agenzia
Opzioni aggiuntive

Contatta l'inserzionista

Oppure
agent male

Draženka Blazinarić