map icon

Trilocale nuovo, secondo piano, Pachoschiane

Pachoschiane
€ 389.322
3
111 m²
2
2
Terrazzo

Nota

Annuncio aggiornato il 18/11/2025
Descrizione

This description has been translated automatically and may not be accurate

riferimento: DA100065158

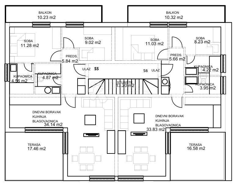
PAKOŠTANE S6 APARTMENT ON THE 2ND FLOOR WITH ROOFTOP TERRACE AND TWO BEDROOMS

The apartment is part of a small residential building with a total of 6 units.
The building is located in a quiet area, approximately 550 meters from a pebble beach.

Apartment S6 is situated on the second floor and consists of an entrance hall, kitchen, dining and living area, two bedrooms, and two bathrooms, with a total interior area of 66.81 m.
The apartment also features two covered terraces: one accessible from the living room (16.58 m) and one accessible from the bedrooms (10.32 m).
On top of the building, there is a spacious rooftop terrace of 97.32 m.
The apartment includes one parking space.

The total net usable area for sale is 111,24 m.

High-quality construction.

Expected completion of construction: 07/2026.

The buyer does not pay real estate transfer tax.

Croatias number one real estate agency for 25 years.

For more information or to schedule a viewing, please contact: +385 91 9077 396 or vedrana.basic@dogma-nekretnine.com

Contact:
VEDRANA BAŠIĆ
Mobile: +385 91 9077 396
E-mail: vedrana.basic@dogma-nekretnine.com

ID CODE: DA100065158

Vedrana Bašić
Asistent u posredovanju
Mob: 091/907-7396
Tel: 023/551-400
E-mail: vedrana.basic@dogma-nekretnine.com
www.dogma-nekretnine.com
Se vuoi saperne di più, puoi parlare con Vedrana Bašić .
Caratteristiche
Tipologia
Appartamento
Contratto
Vendita
Piano
2 piano
Superficie
111 m²
Locali
3
Camere da letto
2
Bagni
2
Balcone
No
Terrazzo
Informazioni sul prezzo
Prezzo
€ 389.322
Prezzo al m²
3.507 €/m²
Efficienza energetica
  • Stato

    Nuovo / In costruzione
  • Certificazione energetica

    Esente
Scopri ogni angolo dell'immobile
+14
Opzioni aggiuntive

Contatta l'inserzionista

Oppure