map icon

Trilocale nuovo, primo piano, Pachoschiane

Pachoschiane
€ 309.645
3
88 m²
2
1
Terrazzo

Nota

Annuncio aggiornato il 18/11/2025
Descrizione

This description has been translated automatically and may not be accurate

riferimento: DA100065155

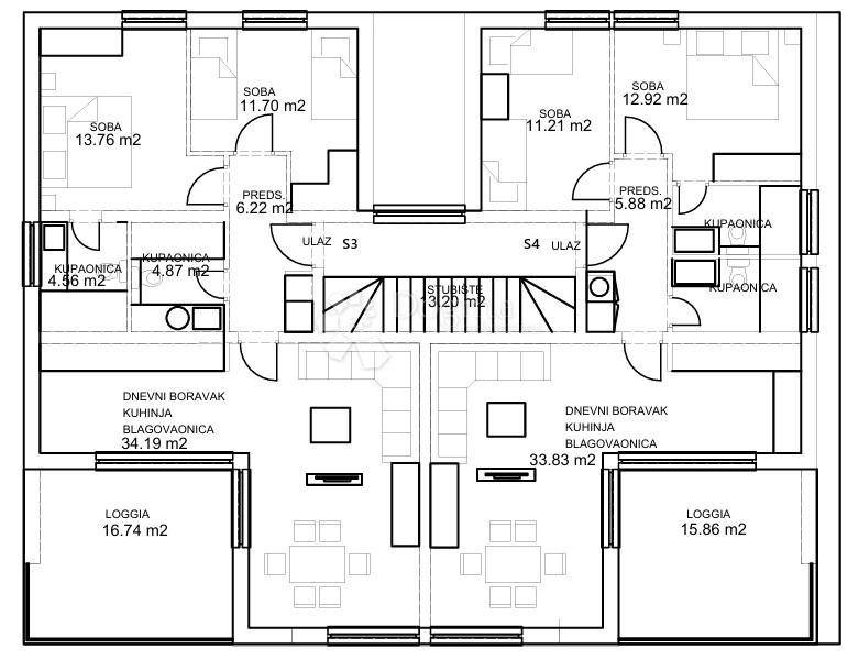
PAKOŠTANE S4 APARTMENT ON THE FIRST FLOOR WITH TERRACE AND TWO BEDROOMS

The apartment is part of a small residential building with a total of 6 units.
The building is located in a quiet area, approximately 550 meters from a pebble beach.

Apartment S4 is located on the first floor and consists of an entrance hall, kitchen, dining and living area, two bedrooms, and two bathrooms, with a total interior surface of 76,79 m. The apartment also includes a covered terrace of 12,24 m and one parking space.
The total net usable area for sale is 86,97 m.

High-quality construction.

Expected completion of construction: 07/2026.

The buyer does not pay real estate transfer tax.

Croatias number one real estate agency for 25 years.

For all additional information or to arrange a viewing, contact exclusively at: +385 91 9077 396 or vedrana.basic@dogma-nekretnine.com

Contact:
VEDRANA BAŠIĆ
Mobile: +385 91 9077 396
E-mail: vedrana.basic@dogma-nekretnine.com

ID CODE: DA100065155

Vedrana Bašić
Asistent u posredovanju
Mob: 091/907-7396
Tel: 023/551-400
E-mail: vedrana.basic@dogma-nekretnine.com
www.dogma-nekretnine.com
Se vuoi saperne di più, puoi parlare con Vedrana Bašić .
Caratteristiche
Tipologia
Appartamento
Contratto
Vendita
Piano
1 piano
Superficie
88 m²
Locali
3
Camere da letto
2
Bagni
2
Balcone
No
Terrazzo
Informazioni sul prezzo
Prezzo
€ 309.645
Prezzo al m²
3.519 €/m²
Efficienza energetica
  • Stato

    Nuovo / In costruzione
  • Certificazione energetica

    Esente
Scopri ogni angolo dell'immobile
+13
Opzioni aggiuntive

Contatta l'inserzionista

Oppure