map icon

Trilocale nuovo, piano terra, Pachoschiane

Pachoschiane
€ 319.830
3
91 m²
2
T
Terrazzo

Nota

Annuncio aggiornato il 18/11/2025
Descrizione

This description has been translated automatically and may not be accurate

riferimento: ST3778

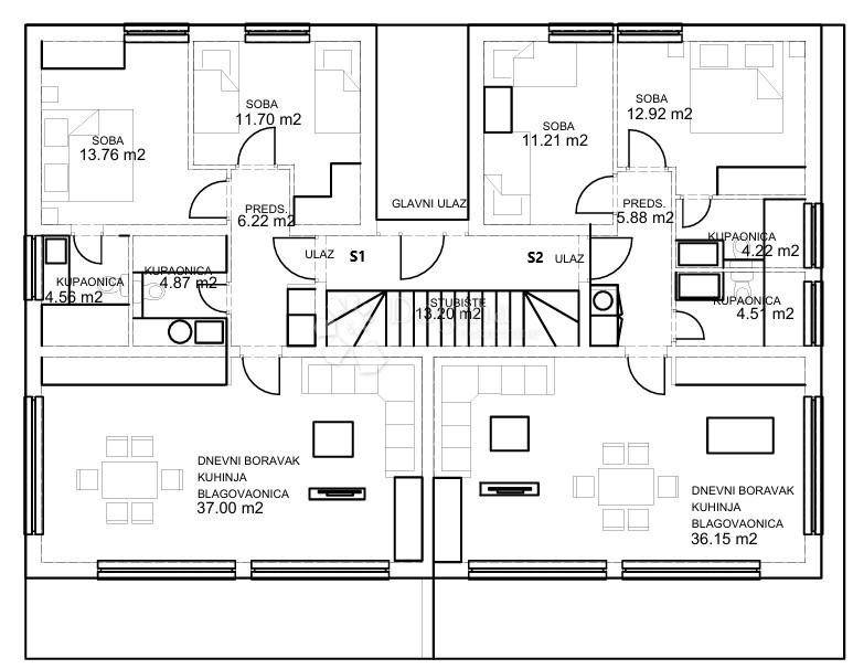
PAKOŠTANE S2 GROUND FLOOR APARTMENT WITH GARDEN

The apartment is part of a small residential building with a total of 6 units.
The building is located in a quiet area, approximately 550 meters from a pebble beach.

Apartment S2 is located on the ground floor and consists of an entrance hall, kitchen, dining and living area, two bedrooms, and two bathrooms. The apartment includes one parking space and a 30 m garden.

High-quality construction.

Expected completion of construction: 07/2026.

The buyer does not pay real estate transfer tax.

Croatias number one agency for 25 years.

For all additional information or to arrange a viewing, contact exclusively at: +385 91 9077 396 or vedrana.basic@dogma-nekretnine.com

Contact:
VEDRANA BAŠIĆ
Mobile: +385 91 9077 396
E-mail: vedrana.basic@dogma-nekretnine.com

ID CODE: ST3778

Vedrana Bašić
Asistent u posredovanju
Mob: 091/907-7396
Tel: 023/551-400
E-mail: vedrana.basic@dogma-nekretnine.com
www.dogma-nekretnine.com
Se vuoi saperne di più, puoi parlare con Vedrana Bašić .
Caratteristiche
Tipologia
Appartamento
Contratto
Vendita
Piano
Piano terra
Superficie
91 m²
Locali
3
Camere da letto
2
Bagni
2
Balcone
No
Terrazzo
Informazioni sul prezzo
Prezzo
€ 319.830
Prezzo al m²
3.515 €/m²
Efficienza energetica
  • Stato

    Nuovo / In costruzione
  • Certificazione energetica

    Esente
Scopri ogni angolo dell'immobile
+13
Opzioni aggiuntive

Contatta l'inserzionista

Oppure