map icon

Bilocale nuovo, secondo piano, Capocesto

Capocesto
€ 269.000
2
65 m²
1
2
Terrazzo

Nota

Annuncio aggiornato il 18/11/2025
Descrizione

This description has been translated automatically and may not be accurate

riferimento: DA100064116

APARTMENT FOR SALE WITH A SEA VIEW NEW DEVELOPMENT IN DOLAC NEAR PRIMOŠTEN

Located in the peaceful settlement of Dolac near Primošten, this modern apartment in a newly built residential building offers a stunning sea view and breathtaking sunsets. The building is in an excellent location, just 350 meters from the sea, and consists of eight residential units.

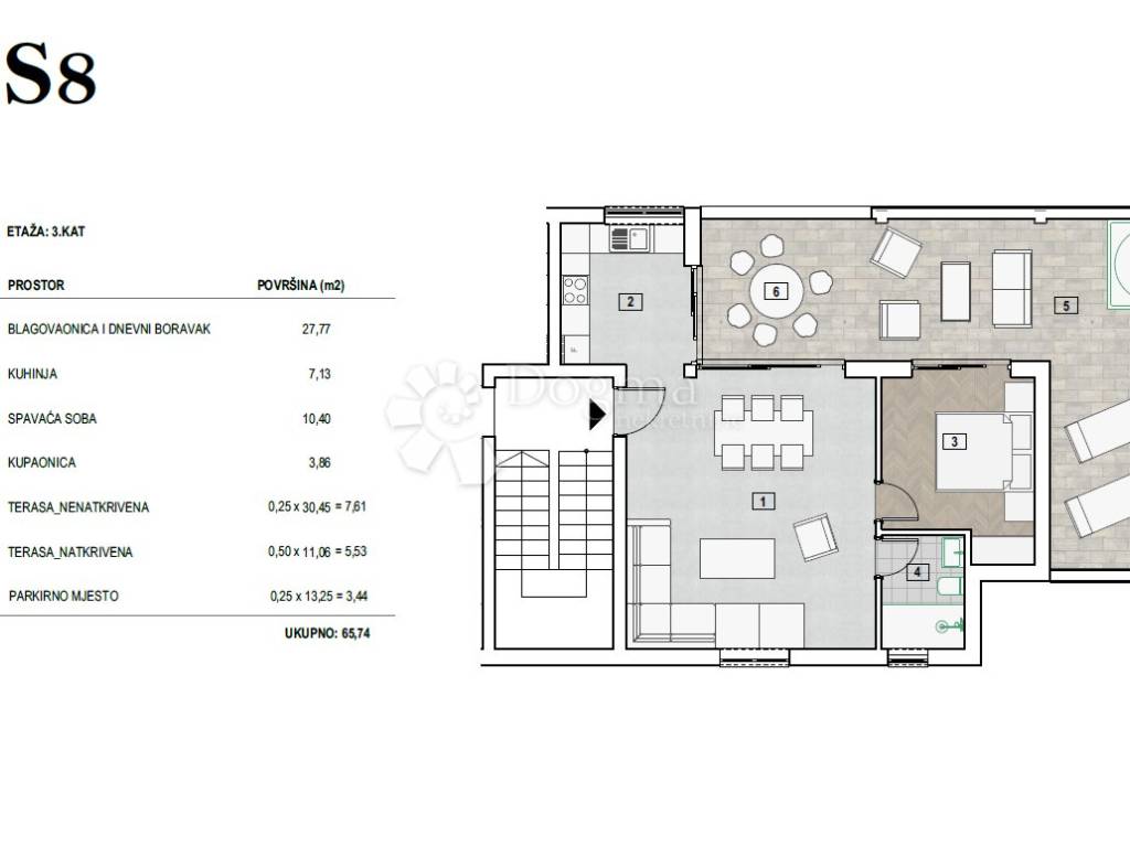
Apartment S7 is situated on the third floor and has a net living area of 66.1 m. It features a kitchen, a spacious living room with a dining area, both with access to a covered loggia offering a panoramic sea view. From the living room, you enter the bedroom, which has access to an uncovered terrace on two sides, and a bathroom.

The apartment is southeast-oriented, bright, airy, and perfect for enjoying the Mediterranean lifestyle.

The building is constructed with high-quality materials, including:

thermal insulation
aluminum joinery with electric shutters and insect screens
dual air conditioning system in the bedrooms plus an additional unit in the living room
underfloor heating in the bathrooms
oak parquet flooring in the bedrooms
high-quality porcelain tiles in other areas
The price includes one parking space in front of the building entrance.

Completion of construction and move-in are expected in spring 2025.

For more information and to schedule a viewing, please contact the agency.

Dont miss this opportunity to own a fantastic apartment with a sea view!

ID CODE: DA100064116

Ante Goleš
Agent s licencom
Mob: 099/222-3054
Tel: 022/646-360, 022/646-361
E-mail: ante.goles@dogma-nekretnine.com
www.dogma-dalmacija.com
Se vuoi saperne di più, puoi parlare con Ante Goleš.
Caratteristiche
Tipologia
Appartamento
Contratto
Vendita
Piano
2 piano
Superficie
65 m²
Locali
2
Camere da letto
1
Bagni
1
Balcone
No
Terrazzo
Informazioni sul prezzo
Prezzo
€ 269.000
Prezzo al m²
4.138 €/m²
Efficienza energetica
  • Anno di costruzione

    2024
  • Stato

    Nuovo / In costruzione
  • Certificazione energetica

    Esente
Scopri ogni angolo dell'immobile
+17
Opzioni aggiuntive

Contatta l'inserzionista

Oppure