Terratetto unifamiliare 134 m², nuova, San Lorenzo del Pasenatico

€ 459.000
5+
134 m²
1
Balcone

Nota

Annuncio aggiornato il 22/01/2026
Descrizione

This description has been translated automatically and may not be accurate

riferimento: IS1512225

A house under construction is for sale in the immediate vicinity of St. Lovreč.
Sveti Lovreč is one of the most desirable locations for building holiday houses and villas precisely because of its quiet location and good connection with the tourist centers of Rovinj and Poreč.
This house under construction is located in a small village in the area, the house is surrounded by family houses and holiday homes, in a quiet and sought-after location, close to all amenities.

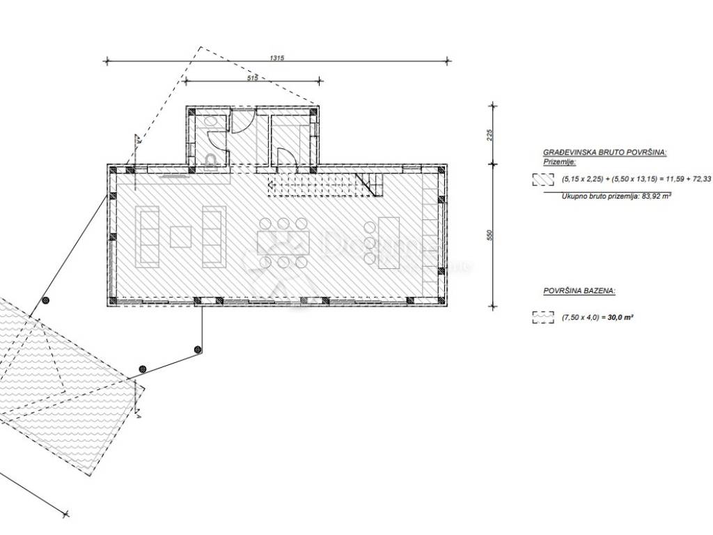
The property is located on a plot of land of 536 m, while the house itself has 134 m.
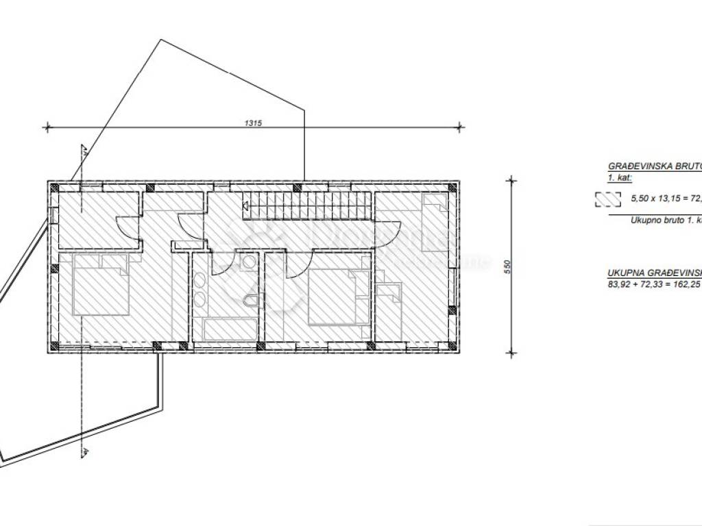
It extends over two floors, namely the ground floor and the first floor.
The ground floor is designed as the main part of the house where you will spend most of your time, and consists of an entrance hall, spacious living room, kitchen and dining room, guest toilet, storage room and covered terrace.
On the 1st floor there are bedrooms, 1 bathroom, a wardrobe and a terrace.

The net area of the ground floor is 77.54 m, while the net square footage of the first floor is 57.41 m.

The house will be fully equipped with ceramic tiles, parquet, underfloor heating and heat pumps, blinds with an electric motor, while all bedrooms will be equipped with air conditioning.
The house will have a pool of 30 m.

ID CODE: IS1512225

Gianna Brženda - DOGMA PULA
Poslovna tajnica
Tel: 052/645 444
E-mail: pula2@dogma-istra.com
www.dogma-nekretnine.com
Se vuoi saperne di più, puoi parlare con Gianna Brženda - DOGMA PULA.
Caratteristiche
Tipologia
Terratetto unifamiliare
Contratto
Vendita
Piano
1
Ascensore
Superficie
134 m² | commerciale 670 m²
Locali
5+
Camere da letto
3
Bagni
1
Balcone
Terrazzo
No
Altre caratteristiche
  • Piscina
Dettaglio superficie

Abitazione

Piano
1
Superficie
134,0 m²
Coefficiente
100%
Tipo superficie
Principale
Sup. commerciale
134,0 m²

Terreno

Piano
Piano terra
Superficie
536,0 m²
Coefficiente
100%
Tipo superficie
Accessoria
Sup. commerciale
536,0 m²
Informazioni sul prezzo
Prezzo
€ 459.000
Prezzo al m²
685 €/m²
Efficienza energetica
  • Anno di costruzione

    2023
  • Stato

    Nuovo / In costruzione
  • Certificazione energetica

    Esente
Scopri ogni angolo dell'immobile
+5
Inserzionista
agent male

Gianna Brženda - DOGMA PULA

scheda agenzia
Opzioni aggiuntive

Contatta l'inserzionista

Oppure
agent male

Gianna Brženda - DOGMA PULA