Terreno edificabile in Vendita

€ 175.000
435 m²

Nota

Annuncio aggiornato il 19/11/2025
Descrizione

riferimento: IS1511783

Stara istarska kuća za rekonstrukciju i proširenje predstavlja idealnu priliku za stvaranje elegantne vile s modernim sadržajima, zadržavajući istarski šarm i tradiciju. Kuća se nalazi u predivnom prirodnom okruženju, što dodatno pojačava njezin potencijal.

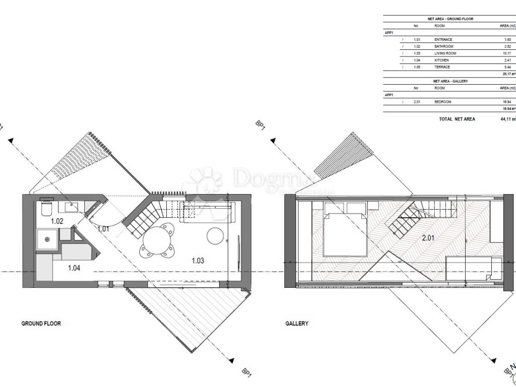
Osnovna struktura kuće obuhvaća prizemlje, prvi kat i potkrovlje, s ukupnom površinom od 210 m2. Idejno rješenje koje je priloženo omogućuje detaljan uvid u potencijalne prostorne aranžmane i mogućnosti proširenja. Prostori su planirani kako bi se maksimalno iskoristila svjetlost i prostor, pružajući ugodan i prostran ambijent.

U sklopu projekta predviđen je i bazen, koji će dodatno obogatiti vanjski prostor. Atrij će biti idealno mjesto za opuštanje i druženje, dok će tri parkirna mjesta osigurati dovoljno prostora za parkiranje vozila.

Zemljište na kojem se kuća nalazi ima ukupnu površinu od 435 m2, a postoji mogućnost proširenja okućnice otkupom dodatnih 110 m2 od općine Raša. Sadašnji vlasnik već je pokrenuo postupak otkupa, što otvara mogućnost za dodatno proširenje i poboljšanje vanjskog prostora.

Kuća već ima priključak struje, vode i septičku jamu, što olakšava proces rekonstrukcije i proširenja. Cijena za pojedinačnu prodaju u ovoj fazi iznosi 195.000 eura, što predstavlja povoljnu priliku za ulaganje u nekretninu koja nudi brojne mogućnosti za prilagodbu vlastitim potrebama i željama.

Cijena za oba zemljišta s idejnim projektom iznosi 310.000 EUR.

Za sve dodatne informacije i razgled nekretnine, slobodno nas kontaktirajte kako bi Vam ponudila personalizirani pristup i diskretnu uslugu pronalaska nekretnina po Vašim željama i preferencijama.

LORENA KOGEJ
Agent s licencom
Mob 091/738-7200
Telefon 052/639-276
lorena.kogej@dogma-nekretnine.com

SANDRA MILETIĆ
Agent s licencom
Mob 091/988-5843
Telefon 052/639-276
sandra.miletic@dogma-nekretnine.com

ID KOD AGENCIJE: IS1511783

Lorena Kogej
Agent s licencom
Mob: 091/738-7200
Tel: 052/639-276
E-mail: lorena.kogej@dogma-nekretnine.com
www.dogma-nekretnine.com

Sandra Miletić
Agent s licencom
Mob: 091/988-5843
Tel: 052/639-276
E-mail: sandra.miletic@dogma-nekretnine.com
www.dogma-nekretnine.com
Se vuoi saperne di più, puoi parlare con Lorena Kogej.
Caratteristiche
Contratto
Vendita
Tipologia
Terreno edificabile
Superficie
435 m²
Informazioni sul prezzo
Prezzo
€ 175.000
Prezzo al m²
402 €/m²
Scopri ogni angolo dell'immobile
+11
Opzioni aggiuntive

Contatta l'inserzionista

Oppure