Trilocale nuovo, secondo piano, Centar, Abbazia

€ 639.500
3
77 m²
2
2
Balcone

Nota

Annuncio aggiornato il 19/11/2025
Descrizione

This description has been translated automatically and may not be accurate

riferimento: ID12112

Opatija, an elegant tourist destination, is the center of the riviera with the longest tradition in Croatian tourism. Opatija is often chosen as a destination for its luxurious hotels, seaside promenades, and numerous world-class dining establishments, all with fantastic views.

At the heart of this tourist center, we have a beautiful new building that attracts attention with its architecture and amenities. It is a high-quality building with an elevator, garages, and accompanying grounds.

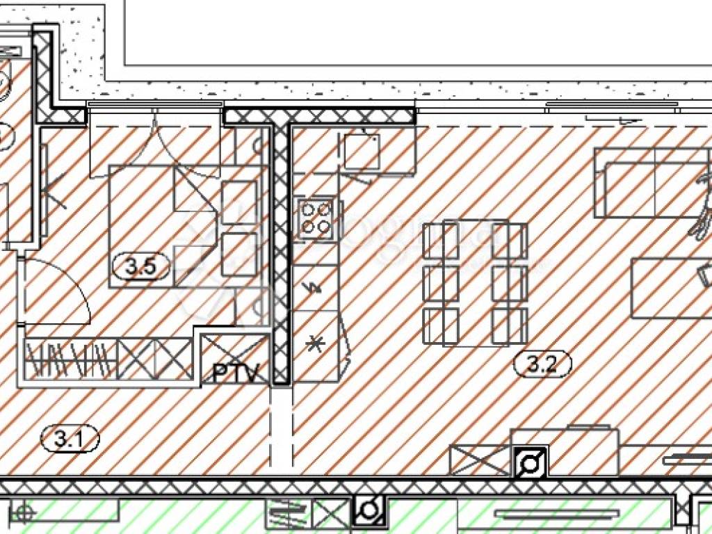
The apartment is located on the first floor, marked in orange on the floor plan, and consists of:

hallway, living room / kitchen / dining room open space, two bedrooms, bathroom, covered balcony, with a total area of 77.09 square meters.
The apartment includes a parking space in the garage and surroundings with a total area of 24.47 square meters.
FACILITIES:
Heat pumps, underfloor heating, fan coil system.
Stone wool 10cm.
ALU joinery.
Exceptional construction quality stands out as a special advantage!

The price includes VAT of 25%, the buyer is exempt from paying real estate transfer tax. In the case of purchase by a company registered in Croatia, a complete VAT refund is possible after the sale.

The new building is designed for lovers of proximity to the sea and beautiful destinations. Its combination of modern design, top-notch amenities, and spectacular surroundings makes it an ideal choice for a relaxing and luxurious vacation in the heart of Opatija.

For any additional information or to schedule a viewing, please contact: +385 95 88 09 208 - Katarina Vlašić.
Email: katarina.vlasic@dogma-nekretnine.com

Agency ID Code: 1509060

ID CODE: ID12112

Katarina Vlašić
Agent s licencom
Mob: 095/880-9208
Tel: 052 645 444
E-mail: katarina.vlasic@dogma-nekretnine.com
www.dogma-istra.com
Se vuoi saperne di più, puoi parlare con Katarina Vlašić.
Caratteristiche
Tipologia
Appartamento
Contratto
Vendita
Piano
2 piano
Ascensore
Superficie
77 m²
Locali
3
Camere da letto
2
Bagni
2
Balcone
Terrazzo
No
Box, posti auto
1 in box privato/box in garage
Climatizzazione
Autonomo, freddo/caldo
Informazioni sul prezzo
Prezzo
€ 639.500
Prezzo al m²
8.305 €/m²
Efficienza energetica
  • Anno di costruzione

    2024
  • Stato

    Nuovo / In costruzione
  • Climatizzatore

    Autonomo, freddo/caldo
  • Certificazione energetica

    Esente
Scopri ogni angolo dell'immobile
+6
Inserzionista
scheda agenzia
Opzioni aggiuntive

Contatta l'inserzionista

Oppure