map icon

Terreno edificabile in Vendita

Gelsa
€ 1.125.600
3.216 m²

Nota

Annuncio aggiornato il 19/11/2025
Descrizione

riferimento: ST1001

Novo u ponudi, atraktivno zemljište za ville na otoku Hvaru!

Posredujemo u atraktivnog zemljišta za gradnju 3 ville koje se nalazi na području Jelse, 100 metara od mora.

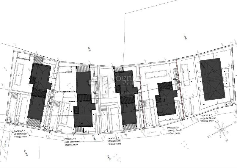
Na prodaju je zemljište od parcele C do parcele E ukupne površine 3216 m2 (prikazano na slici 5).

Sve parcele su u projektu zamišljene kao parcele za ville, no mogu se izgraditi i kuće sa po 6 apartmana, do danas je po urbanističkim uvjetima izgradivost 30% od kvadrature parcele, sa visinom 7,5 m do početka krova (prizemlje + 1 kat).

Parcela A je izgrađena, a parcela B je rezervirana za početak gradnje još jedne ville.

Parcele se nalaze na blagoj kosini, stoga je planirana kaskadna gradnja villa sa ciljem da sve imaju neizbježan pogled na more.

Duž cijelog zemljišta se proteže široki put.

Vrlo atraktivna i rijetka prilika, sama blizina mora, mirno područje jer se na tom dijelu nalazi svega par kuća uz more.

Uskoro će se zemljište parcelizirati na tri zemljišne čestice od kojih će svaka iznositi oko 1000 m2, dostatna za gradnju jedne ville.

Naznačena cijena je za kupnju svih 3216 m2, a naravno može se kupiti i samo jedna parcela za jednu villu.

Nemojte propustiti ovu priliku.

Ukoliko ste zainteresirani, za sva pitanja i ogled, kontaktirajte:

Dora Radujko
Agent s licencom
GSM: +385 91 956 5822
dora.radujko@dogma-nekretnine.com

ID KOD AGENCIJE: ST1001

Dora Radujko
Agent s licencom
Mob: 091/956-5822
Tel: +385 21 293 201
E-mail: dora.radujko@dogma-nekretnine.com
www.dogma-dalmacija.com
Se vuoi saperne di più, puoi parlare con Dora Radujko.
Caratteristiche
Contratto
Vendita
Tipologia
Terreno edificabile
Superficie
3.216 m²
Informazioni sul prezzo
Prezzo
€ 1.125.600
Prezzo al m²
350 €/m²
Scopri ogni angolo dell'immobile
+10
Opzioni aggiuntive

Contatta l'inserzionista

Oppure