Appartamento nuovo, piano terra, Curzola

€ 292.000
T
No

Nota

Annuncio aggiornato il 26/11/2025
Descrizione

This description has been translated automatically and may not be accurate

riferimento: RE980783

Korčula - terreno edificabile con progetto

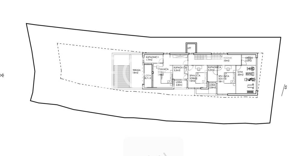
Terreno edificabile di 730 m² situato in una baia tranquilla sull'isola di Korčula, in prima fila sul mare. Il terreno è di forma regolare e offre accesso diretto alla spiaggia e una splendida vista sul mare cristallino. Il terreno ha un permesso di costruzione per un progetto di una villa moderna con un edificio ausiliario – una piscina, e allacciamenti per elettricità e acqua, e l'accesso alla proprietà è garantito da una strada carrabile e pedonale, con due posti auto. La villa pianificata è composta da un piano terra e un primo piano. Al piano terra ci sono un corridoio, una cucina con sala da pranzo, un soggiorno e un'ampia terrazza coperta, nonché un piccolo appartamento per il personale di servizio. Una scala e un ascensore conducono al primo piano dove ci sono tre camere da letto con bagno privato e logge, un guardaroba, un ufficio e una palestra. Tutte le stanze principali sono orientate a sud e con vista sul mare. Il giardino è concepito come uno spazio verde curato con piscina, solarium, sentieri e diversi luoghi per rilassarsi, e la posizione offre un perfetto equilibrio tra privacy, natura e lusso. Per ulteriori informazioni e per fissare un appuntamento per la visione, contattateci!
Caratteristiche
Tipologia
Appartamento
Contratto
Vendita
Piano
Piano terra
Ascensore
No
Terrazzo
No
Informazioni sul prezzo
Prezzo
€ 292.000
Efficienza energetica
  • Stato

    Nuovo / In costruzione
  • Certificazione energetica

    In attesa di certificazione
Planimetria
Scopri ogni angolo dell'immobile
+9
Opzioni aggiuntive

Contatta l'inserzionista

Oppure