map icon

Appartamento nuovo, piano terra, Zagabria

Zagabria
€ 290.000
5
100 m²
T

Nota

Annuncio aggiornato il 23/12/2025
Descrizione

riferimento: 278-1

Prodaja stanova u novogradnji u samom centru Sesveta.
Dojmljivi projekt, modernog dizajna i vrhunske kvalitete gradnje nalazi se centru Sesveta, okružen obiteljskim kućama.
Ono što ovaj projekt ističe od drugih je zavidna kvadratura vanjskog prostora. Prostrane terase i vrtovi u prizemlju, ovaj projekt izdvajaju od drugih.
Zgrada je armiranobetonska te ima 8 stanova. Čine ju prizemlje, 1. kat, 2. kat i uvučeni kat.
Na svakoj etaži se nalaze po dva stana. Zgrada ima lift marke Schindler i videonadzor. Svakom stanu pripada jedno vanjsko parkirno mjesto ( 12.50 m2) sa električnim priključkom te vanjsko montažno spremište sa strujom ( 2 m2). Na krovu je priprema za solarne panele po želji budućih vlasnika.
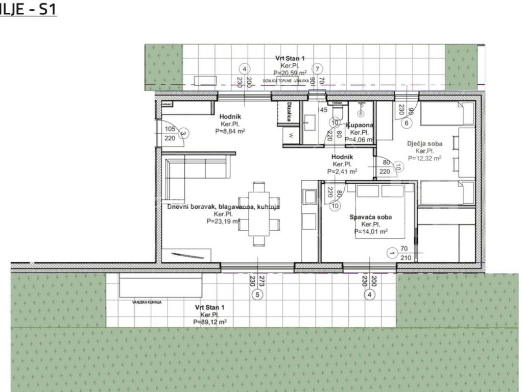
Stan oznake S1 nalazi se u prizemlju. Sveukupna kvadratura iznosi 100.04 m2 dok unutarnjeg stambenog prostora ima 62.35 m2 i čine ga: ulazni hodnik ( 8.77m2), prostrani dnevni prostor ( dnevni boravak, blagovaona i kuhinja od 23.19 m2), hodnik koji vodi prema spavaćem dijelu stana ( 2.41 m2), kupaona ( 4 m2) te dvije spavaće sobe od kojih je jedna master soba sa walk in ormarom ( 14 m2) i jedna dječja soba ( 12.32 m2). Stanu također pripada vrt ( 52 m2) te velika natkrivena terasa ( 59 m2). Predivan vanjski prostor koji daje osjećaj kuće, biti će ograđen i hortikulturno uređen.
Blizina svih sadržaja. Udaljenosti: dječji vrtić 100m, crkva 400m, Kaufland 600m, dućan dječje igralište 250m, glazbena škola 160m, super Konzum 600m...
Idealna nekretnina za obitelj, mlade parove bez dece, starije osobe ali i kao investicija.
OPREMA:
-Marlex PVC stolarija s troslojnim IZO staklom
-protuprovalna vrata
-aluminijske električne rolete
-stiropor fasada debljine 15 cm
- keramičke pločice 1. klase (podno grijanje)
-svaka soba ima termostat
- klima uređaj u svakoj sobi
-priprema za ljetnu kuhinju na terasi
Agencijska provizija iznosi 2% + PDV.
Agent
Sonja Toš
+385916115606
M: sonja@mmi.hr
Se vuoi saperne di più, puoi parlare con Sonja Strmečki Toš.
Caratteristiche
Tipologia
Appartamento
Contratto
Vendita
Piano
Piano terra
Superficie
100 m²
Locali
5
Camere da letto
2
Informazioni sul prezzo
Prezzo
€ 290.000
Prezzo al m²
2.900 €/m²
Efficienza energetica
  • Stato

    Nuovo / In costruzione
  • Certificazione energetica

    Non classificabile
Scopri ogni angolo dell'immobile
+11
Opzioni aggiuntive

Contatta l'inserzionista

Oppure