Trilocale Markuševečka cesta 19, Gračani, Zagabria

€ 635.000
3
137 m²
2
13
Balcone
Terrazzo

Nota

Annuncio aggiornato il 28/11/2025
Descrizione

riferimento: EK-876067

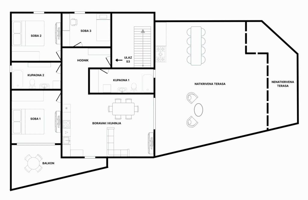
Parthenon nekretnine posreduju u prodaji luksuznog četverosobnog stana u novoj urbanoj vili, veličine 136.58 m2, na atraktivnoj poziciji u naselju Gračani, Zagreb.

Stan je novogradnja, nalazi se na 2. katu od ukupno 2 kata, u urbanoj vili s ukupno 3 stana. Stanu pripadaju i 2 garažna parkirna mjesta te ostava. Ukupna kvadratura je 193.73 m2.

Stan od 136.58 m2, sastoji se od: hodnika, prostranog openspace dnevnog boravka s kuhinjom i blagovaonicom (34.51 m2), koji ima izlazak na prostranu terasu (natkriveni dio 52.40 m2 + nenatkriveni dio 19.56 m2, 3 prostrane spavaće sobe, od kojih jedna ima izlazak na balkon veličine 8.97 m2, 2 kupaonice. Spremište i 2 garažna parkirna mjesta ukupne su kvadrature 38.23 m2.

Stan je rađen i opremljen materijalima najviše kvalitete, visoke energetske učinkovitosti i protupotresnom gradnjom.

Stolarija je PVC, antracit boje, najviše kvalitete s električnim podizačima roleta, te komarnicima.

Za maksimalno udobnost, postavljen je kvalitetan parket i keramika uz dizalice topline i podno grijanje. U stan su postavljeni i klima uređaji.

Mikrolokacija je vrlo atraktivna i mirna, odlična za ugodan i nesmetan život, s dobrom prometnom povezanosti. Brz pristup javnom prijevozu, trgovačkom centru, školama, vrtiću, sportskom centru i centru grada. Blizina žičare Sljeme, planinarskih staza i prirode.

Cijena stana je: 635.000 €

Vlasništvo je uredno 1/1
Mogućnost kupnje na kredit.
Moguć dogovora za popusta na avansnu uplatu.
Završetak gradnje je početak 2026. godine.

Za više informacija, na raspolaganju Vam stoji naša agentica Ines koju možete kontaktirati na broj telefona: 091-482-5857.
Caratteristiche
Tipologia
Appartamento | Intera proprietà | Immobile di lusso
Contratto
Vendita
Piano
13
Piani edificio
2
Superficie
137 m²
Locali
3
Camere da letto
2
Bagni
2
Balcone
Terrazzo
Box, posti auto
2 posto auto
Riscaldamento
Autonomo, a pavimento
Altre caratteristiche
  • Infissi esterni in vetro / PVC
  • Porta blindata
  • Ripostiglio
  • Toilette separata
Dettaglio superficie

Abitazione

Piano
13
Superficie
136,5 m²
Coefficiente
100%
Tipo superficie
Principale
Sup. commerciale
136,5 m²
Informazioni sul prezzo
Prezzo
€ 635.000
Prezzo al m²
4.635 €/m²
Dettaglio dei costi
Spese condominio
Nessuna spesa condominiale
Efficienza energetica
  • Anno di costruzione

    2026
  • Stato

    Nuovo / In costruzione
  • Riscaldamento

    Autonomo, a pavimento
  • Certificazione energetica

    Esente
Planimetria
S3_tlocrt
Scopri ogni angolo dell'immobile
+9
Opzioni aggiuntive

Contatta l'inserzionista

Oppure