Terreno edificabile in Vendita

€ 101.000
970 m²

Nota

Annuncio aggiornato il 02/12/2025
Descrizione

riferimento: EK-991799

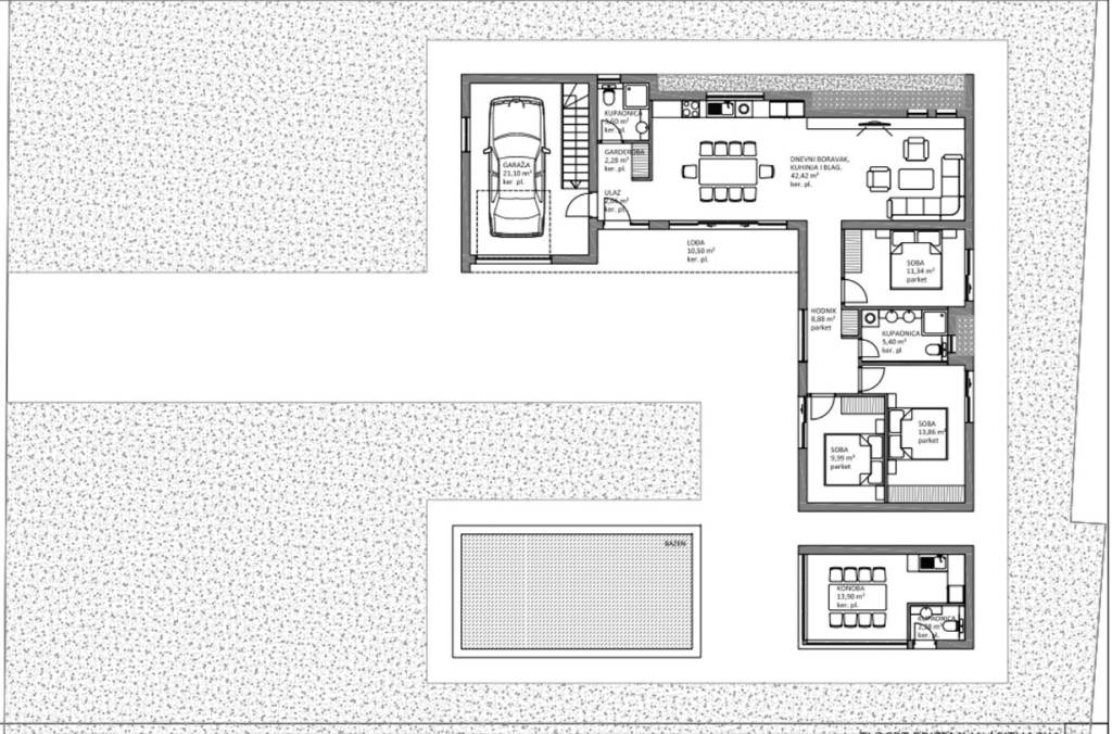
Prodaje se građevinsko zemljište površine 970 m2 u mjestu Zemunik Gornji sa projektom za kuću prizemnicu (tlocrt projekta u privitku). Predan zahtjev za izdavanje građevinske dozvole u 9 mj. 2025. godine. Idealno za vikendicu ili kuću za odmor za iznajmljivanje. Više informacija na upit.
Se vuoi saperne di più, puoi parlare con Ivana Pezo Milković.
Caratteristiche
Contratto
Vendita
Tipologia
Terreno edificabile
Superficie
970 m²
Informazioni sul prezzo
Prezzo
€ 101.000
Prezzo al m²
104 €/m²
Planimetria
Screenshot_1
Scopri ogni angolo dell'immobile
+4
Inserzionista
agent male

Ivana Pezo Milković

scheda agenzia
Opzioni aggiuntive

Contatta l'inserzionista

Oppure
agent male

Ivana Pezo Milković