Vivenda familiar 125 m², Centar, Luka, Finida, Umag

€ 790.000
5
125 m²
3
Sim
Varanda
Terraço

Nota

Anúncio atualizado em 08/04/2026
Descrição

This description has been translated automatically and may not be accurate

referência: IS1519066

In an exceptionally peaceful and attractive location in Umag, just 300 meters from the sea and the beautiful coastal promenade, stands this modern semi-detached house under constructionideal for anyone seeking comfort, quality, and the Mediterranean lifestyle. The property is also only a few minutes walk from the city center, offering a perfect balance between privacy and convenience.

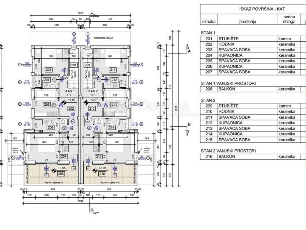
The total living area of the house is 125 m, spread over two floors. The ground floor is designed as an open and airy space combining the living room, kitchen, and dining area, with direct access to a 20 m covered terrace. The terrace overlooks the landscaped garden and a 22 m swimming pool, creating a perfect setting for relaxation and social gatherings throughout the day. The ground floor also includes a guest toilet, storage room, and wardrobe space.

The first floor features three comfortable and bright bedrooms and two modern bathrooms. The 12 m covered terrace on this level offers a peaceful spot to enjoy your morning coffee or romantic sunsets.

The house is built to high construction standards, providing exceptional comfort and energy efficiency. It is equipped with anthracite PVC joinery with safety glass, air-conditioning units in every room, and preparation for underfloor heating. High-quality materials ensure durability, excellent insulation, and a modern aesthetic. The exterior includes a beautifully landscaped garden and two private parking spaces.

The superb location makes this property ideal both for family living and as an excellent investment for tourist rental, given the proximity to the sea, beaches, restaurants, shops, cycling paths, and all essential amenities.

For all additional information, please contact:
Karlo Šestan
Assistant in Mediation
Mobile: +385 91 3611 922
Email: karlo.sestan@dogma-nekretnine.com

ID CODE: IS1519066

Karlo Šestan
Asistent u posredovanju
Mob: 091/361-1922
Tel: +385 52 771 458
E-mail: karlo.sestan@dogma-nekretnine.com
www.dogma-nekretnine.com
Se quiser saber mais, pode falar com Karlo Šestan.
Características
Tipologia
Vivenda familiar
Contrato
Venda
Andar
1
Elevador
Sim
Superfície
125 m² | comercial 385 m²
Quartos
5
Quartos
3
Casas de banho
3
Varanda
Sim
Terraço
Sim
Outras características
  • Piscina
Detalhe da superfície

Habitação

Andar
1
Superfície
125,0 m²
Coeficiente
100%
Tipo de superfície
Principal
Sup comercial
125,0 m²

Terreno

Andar
Rés-do-chão
Superfície
260,0 m²
Coeficiente
100%
Tipo de superfície
Acessórios
Sup comercial
260,0 m²
Informações de preço
Preço
€ 790.000
Preço por m²
2.052 €/m²
Eficiência energética
  • Ano de construção

    2025
  • Certificação energética

    Livre
Descubra cada canto da propriedade
+19
Opções adicionais

Contactar o anunciante

Ou