Vivenda plurifamiliar 149 m², nova, Zagreb

€ 374 325
3
149 m²
2
Não

Nota

Anúncio atualizado em 03/12/2025
Descrição

referência: EK-1020933

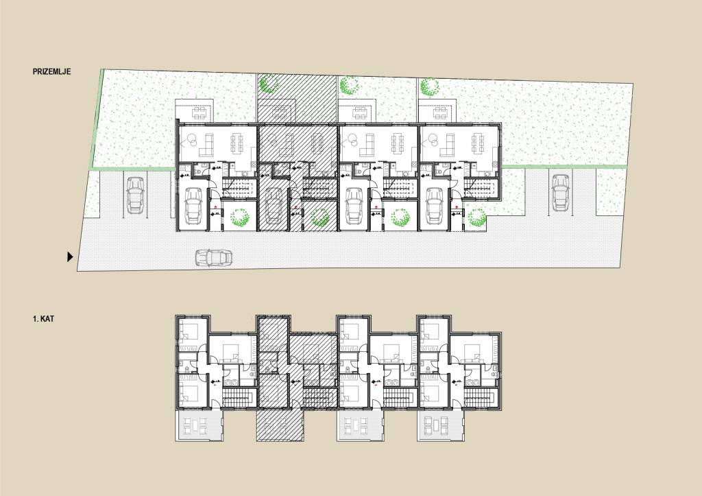
Planirana zgrada je stambene namjene. Sastoji se od 4 samostalne stambene jedinice smještene na 2 nadzemne etaže.
U prizemlju su osim stambenih jedinica predviđene 4 garaže u sklopu jedinica.
Organizacijski se svaka stambena jedinica sastoji od prizemlja i 1. kata.
Svijetla visina etaže prizemlja je 3,10m. Svijetla visina etaže kata je 3,00m.

PODNO GRIJANJE
Svaki priključak pojedinog kruga podnog grijanja na povratnom razdjelniku opremljen je topmetrom, kojom je omogućena regulacija svakog kruga podnog grijanja podešavanjem protoka vode sustava podnog grijanja. Protok tople vode u
pojedinom krugu podnog grijanja definiran je u proračunu.
Svaki priključak pojedinog kruga na polaznom razdjelniku opremljen je termostatskim ventilom sa ručnim regulacijskom kapom, koja će se zamijeniti sa termoelektričnim pogonom. S elektrotermičkim pogonom predregulacija je osigurana u
skladu sa signalom sa sobnog termostata.
Broj krugova razdjelnika ovisi o broju krugova podnog grijanja. Razdjelnik će se smjestiti u ormarić predviđen za podžbuknu ugradnju. Razdjelnik treba biti opremljen sa glavnim slavinama na polaznom i povratnom vodu, sa čepovima, sa termometrima te sa ručnim odzračnim i ispusnim ventilima.

Za potrebe hlađenja prostora u građevinu će se ugraditi split klima sustav u izvedbi dizalice topline zrak-zrak. Strojarskim instalacijama predviđeno je održavanje sljedećih mikroklimatskih uvjeta u prostorijama:

Transport rashladnog medija od vanjske jedinice do unutarnjih jedinica vršit će se tvornički izoliranim bakrenim cijevima u kolutu. Instalacija odvoda kondenzata s unutarnjih klima jedinica izvesti će se iz PP cijevima spojem na zidni sifon, a
dalje u odvod građevine.

VANJSKA KLIMA JEDINICA
Vanjska jedinica split sustava, namijenjena je za vanjsku montažu - zaštićena od vremenskih utjecaja, s ugrađenim inverter kompresorom, zrakom hlađenim kondenzatorom i svim potrebnim elementima za zaštitu, kontrolu i regulaciju
uređaja i funkcionalni rad.

UNUTARNJE KLIMA JEDINCE
Unutarnje jedinice zidne izvedbe sa maskom su opremljene ventilatorom, trobrzinskim elektromotorom, izmjenjivačem topline s direktnom ekspazijom freona, te svim potrebnim elementima za zaštitu, kontrolu i regulaciju uređaja i temperature. Fotokatalitički filter za pročišćavanje zraka od titanij apatita uklanja mikroskopske čestice prašine u zraku, snažno uklanja neugodne mirise i pomaže u sprječavanju razmnožavanja bakterija, virusa i mikroba osiguravajući stalan dotok čistog zraka. Unutarnje zidne jedinice klima uređaja opremljene su IC bežičnim upravljačima.

GRIJANJE KUPAONICA
U kupanice se ugrađuju električni radijatori kao pomoć toplovodnom podnom grijanju.

ODABIR DIZALICE TOPLINE
Izvor topline za grijanje građevine biti će dizalica topline zrak/voda. Niskotemperaturna reverzibilna dizalica topline zrak voda, za split monoenergetske sustave, radi do niskih vanjskih temperatura, pri smanjenom kapacitetu. Ovo osigurava dovoljan rad dizalice topline za najhladnije klimatske uvijete. Vanjske jedinice dizalica topline će se ugraditi na ravni krov građevine, dok će se unutarnje jedinice ugraditi unutar građevine, u prostor predviđen za opremu za grijanje. Spajanje između unutarnje i vanjske jedinice je pomoću predizoliranih bakrenih cijevi s rashladnim sredstvom R32.

STOLARIJA I BRAVARIJA
Vanjski prozori izvesti će se s PVC profilima s prekinutim toplinskim mostom, s trostrukim low-E IZO-staklom s ispunom toplinski inertnim plinom, dva stakla premazana low-E premazom, debljina ≥ 4+14+4+14+4 mm. Za ljetnu zaštitu od
sunca koristiti će se rolete. U prizemlju će biti električne, a na katu obične.
Vanjska balkonska vrata (staklene stijene) izvesti će se s PVC profilima s prekinutim toplinskim mostom, s trostrukim low-E IZO-staklom s ispunom toplinski inertnim plinom, dva stakla premazana low-E premazom, debljina ≥ 4+14+4+14+4 mm.

Kuće u nizu su smještene u Rakitju, 7 km udaljenom od centra Zagreba. U blizini se nalaze prekrasna jezera, kao i ostali potrebni sadržaji: trgovine, vrtić, škola… Lokacija je idealna jer je dobro povezana s okolicom, a pojedinac može uživati u zelenilu i miru.

S2:

1. Ulazni prostor – 5,90 m2
2. Garaža – 18,50 m2
3. WC – 2,15 m2
4. Dnevni boravak, kuhinja i blagovaonica – 35,78 m2
5. Stubište – 7,20 m2
6. Spremište – 4,14 m2
7. Natkrivena terasa (10x0,50) – 5 m2
8. Vrt (42,32x0,10) – 4,23 m2
9. Hodnik – 8,96 m2
10. Vešeraj – 3,73 m2
11. Soba 1 – 15 m2
12. Kupaonica 1 – 3,99 m2
13. Soba 2 – 10,56 m2
14. Kupaonica 2 – 4,06 m2
15. Soba 3 – 10,44 m2
16. Terasa (14,17x0,25) – 3,54 m2
17. Natkriveni ulaz (4,63x0,50) – 2,32 m2
18. Vrt (11,03x0,10) – 1,10 m2
19. Parking mjesto PM2 (12,50x0,25) – 3,13 m2

UKUPNO:
130,41 m2
SVEUKUPNO: 149,73 m2

Za sva pitanja kontakt telefon 098 / 915 - 5643 ( Ivan )

LORETA NEKRETNINE
Loreta Usluge Office: Tel: 01 / 3866 - 844
Zagrebačka avenija 100 a, 10 000 Zagreb
www.loreta-nekretnine.com
Se quiser saber mais, pode falar com Ivan Bošković.
Características
Tipologia
Vivenda plurifamiliar
Contrato
Venda
Andar
Rés-do-chão
Andares do Edifício
1
Elevador
Não
Superfície
149 m²
Quartos
3
Casas de banho
2
Terraço
Sim
Outras características
  • Banheiro separado
  • Janelas em vidro triplo / PVC
Eficiência energética

Consumo de energia

≥ 250 kWh/m² anoA

Planta
Opções adicionais

Contactar o anunciante