Apartamento T2 novo, rés-do-chão, Šibenik

€ 200.000
2
53 m²
1
r/c

Nota

Anúncio atualizado em 21/02/2026
Descrição

This description has been translated automatically and may not be accurate

referência: 626-1

For Sale – New-Build Apartment with Private Garden & 2 Parking Spaces | Brodarica (Šibenik)

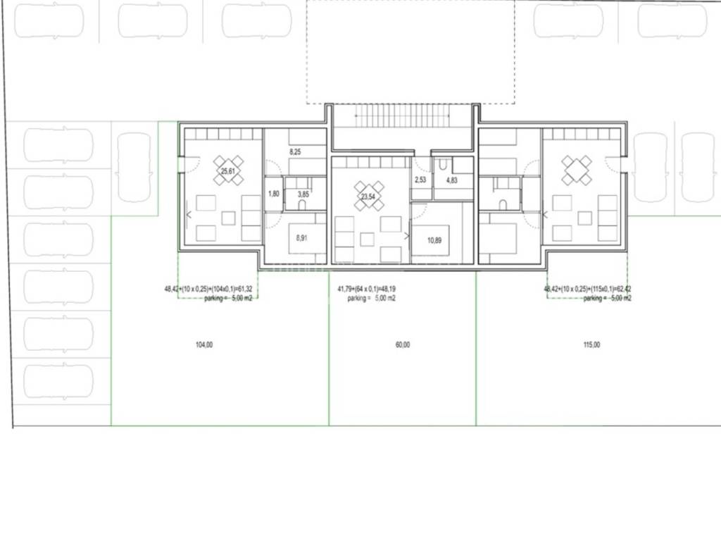
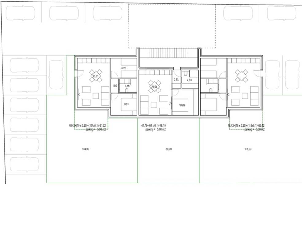
For sale is a modern new-build apartment located in a quiet and sought-after area of Brodarica, near Šibenik. The property is ideal for permanent living, holidays, or tourist rental. At this stage, buyers can choose finishing materials (tiles, parquet flooring, and selected bathroom elements).

Areas & Price:

living area: 42 m²

private garden: 60 m²

total calculated area: 53 m²

2 outdoor parking spaces included in the price

price: €200,000

planned completion: end of 2026

Features & Equipment:

buyer’s choice of tiles and parquet flooring

triple-glazed windows for excellent thermal and sound insulation

modern bathroom with walk-in shower

heating and cooling via air-conditioning

1 unit in the bedroom

1 unit in the living room

private garden (60 m²) – perfect for a terrace, garden, or outdoor living

2 parking spaces directly next to the apartment

high-quality, contemporary construction – ideal for long-term use or investment

Infrastructure:

separate utility meters (electricity, water, sewage)

built to modern energy-efficiency and insulation standards

Location:
Quiet part of Brodarica, just minutes from Šibenik. Nearby amenities include beaches, shops, school, marina, restaurants, and promenades, offering an excellent balance of tranquility and convenience.

Se quiser saber mais, pode falar com Ivana Klasan.
Características
Tipologia
Apartamento | Propriedade plena | Propriedade de luxo
Contrato
Venda
Andar
Rés-do-chão
Andares do Edifício
2
Superfície
53 m²
Quartos
2
Quartos
1
Casas de banho
1
Mobilado
Não
Estacionamento, lugares de estacionamento
2 em estacionamento compartilhado
Distância do mar
450 m
Outras características
  • Porta blindada
Detalhe da superfície

Outro

Andar
Rés-do-chão
Superfície
53,0 m²
Coeficiente
100%
Tipo de superfície
Principal
Sup comercial
53,0 m²
Informações de preço
Preço
€ 200.000
Preço por m²
3.774 €/m²
Eficiência energética
  • Ano de construção

    2026
  • Estado

    Novo / Em construção
  • Certificação energética

    Não classificável
Planta
TLOCRT (Copy)
Descubra cada canto da propriedade
+13
Opções adicionais

Contactar o anunciante

Ou