Vivenda familiar 122 m², nova, Malinska-Dubašnica

€ 487.000
3
122 m²
3
Não
Varanda
Terraço

Nota

Anúncio atualizado em 10/03/2026
Descrição

This description has been translated automatically and may not be accurate

referência: ID-1801

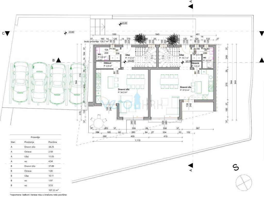
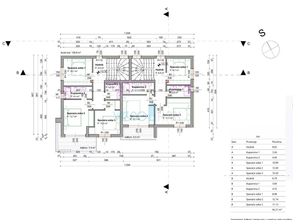
Malinska, island of Krk, center, an attractive semi-detached house of modern design is offered. The location 600 m from the sea and the beach is a special advantage because it is a quiet residential area, yet easily accessible from the center. The house, with a total area of 122.81 m2, is arranged on the ground floor and first floor. On the ground floor there is an open space living area with kitchen, dining room, storage room, and bathroom. In front of this space is a covered terrace. On the first floor there are three bedrooms, one of which has its own bathroom, while the remaining two rooms share a second bathroom. The master bedroom has access to a covered terrace of 5 m2 with a sea view. On the 110 m2 plot, there is the possibility of building a 30 m2 pool with a sunbathing area and a machine room. Construction will take place during 2025/2026, and high-quality materials and equipment are planned (multi-split air conditioning, underfloor heating in bathrooms, hallway and ground floor, parquet floors in bedrooms, Italian ceramics, PVC joinery, electric roller shutter lifts, security doors, mosquito nets, 10 cm insulation, and preparation for rooftop solar panels, alarm and video surveillance). On the landscaped plot, there is parking and maneuvering space for two cars (25 m2). One parking space will have preparation for an electric car charging station. An excellent opportunity to invest in a brand new home by the sea.

Welcome to the viewing.
Se quiser saber mais, pode falar com Roman Doles.
Características
Tipologia
Vivenda familiar | Classe propriedade média
Contrato
Venda
Elevador
Não
Superfície
122 m²
Quartos
3
Quartos
3
Casas de banho
3
Varanda
Sim
Terraço
Sim
Aquecimento
Individualizado, com radiadores, fonte de alimentação elétrica
Ar condicionado
Ar condicionado
Vista
Mar
Distância do mar
600 m
Outras características
  • Jardim privado e comum
  • Porta blindada
  • Piscina
Informações de preço
Preço
€ 487.000
Preço por m²
3.992 €/m²
Eficiência energética
  • Ano de construção

    2025
  • Estado

    Novo / Em construção
  • Aquecimento

    Individualizado, com radiadores, fonte de alimentação elétrica
  • Ar condicionado

    Ar condicionado
Descubra cada canto da propriedade
+2
Opções adicionais

Contactar o anunciante

Ou