1/10


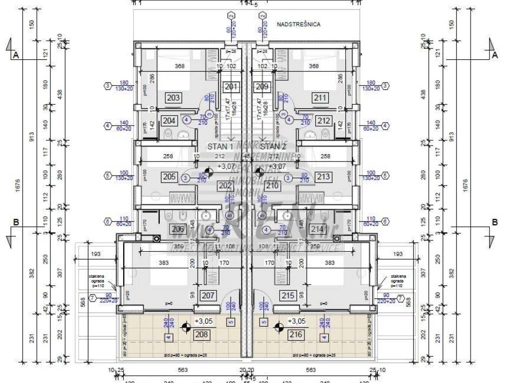
Vivenda familiar 143 m², nova, Umag
UmagPreço sob consulta
Anúncio atualizado em 22/12/2025
Características
- Tipologia
- Vivenda familiar
- Contrato
- Venda
- Andar
- 1
- Andares do Edifício
- 2
- Superfície
- 143 m² | comercial 343 m²
- Quartos
- 3
- Casas de banho
- 2
- Estacionamento, lugares de estacionamento
- 1 em estacionamento compartilhado
Detalhe da superfície
Habitação
- Andar
- 1
- Superfície
- 143,0 m²
- Coeficiente
- 100%
- Tipo de superfície
- Principal
- Sup comercial
- 143,0 m²
Terreno
- Andar
- Rés-do-chão
- Superfície
- 200,0 m²
- Coeficiente
- 100%
- Tipo de superfície
- Acessórios
- Sup comercial
- 200,0 m²
Informações de preço
- Preço
- Preço sob consulta
Eficiência energética
Ano de construção
2025Estado
Novo / Em construçãoCertificação energética
Não classificável
Descubra cada canto da propriedade
Opções adicionais