map icon

Apartamento T4 primeiro andar, Split

Split
€ 260.000
4
58 m²
1
1

Nota

Anúncio atualizado em 01/01/2026
Descrição

This description has been translated automatically and may not be accurate

referência: 1491-1

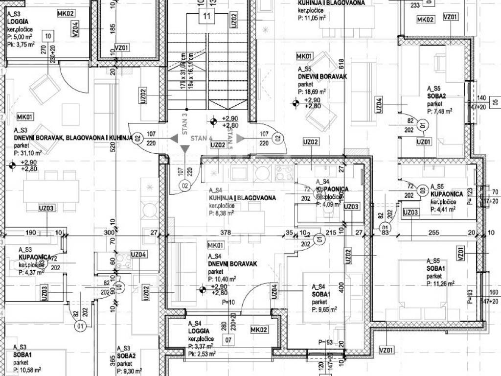
We are offering for sale a two-bedroom apartment on the first floor of a residential building under construction in the Slatina area on the island of Čiovo. The apartment is marked "STAN 5".
The apartment consists of two bedrooms, a bathroom with a toilet, a living room with a kitchen and a dining room, and a loggia.
The interior area of the apartment is 52.89 m2, and the loggia is 5 m2.
It comes with one covered parking space.
Each buyer receives a one-year apartment insurance as a gift, which includes protection against floods, fires, burglary and similar risks. There is an option to purchase garage spaces, namely a garage with one parking space at a price of 30,000 or a garage with two parking spaces at a price of 45,000. Buying an apartment through a housing loan is possible with a minimum 20% down payment.
All apartments will have underfloor heating in the bathrooms, and each apartment will be equipped with one air conditioning unit. Top-quality PVC joinery with electric shutters and mosquito nets on all openings will be installed. Ceramic tiles can be chosen from two to three types offered, while the sanitary facilities are provided by the seller.
The buildings are built in reinforced concrete construction with thermal insulation of 10 cm of rock wool, and the staircase is of the closed type.
The distance from the sea is only 70m!
For more information, contact the agent.
Características
Tipologia
Apartamento
Contrato
Venda
Andar
1 andar
Superfície
58 m²
Quartos
4
Quartos
2
Casas de banho
1
Informações de preço
Preço
€ 260.000
Preço por m²
4.483 €/m²
Eficiência energética
  • Certificação energética

    Não classificável
Descubra cada canto da propriedade
+5
Opções adicionais

Contactar o anunciante

Ou